本情報は過去に掲載された物件の参考情報です。 最新の物件情報など詳細につきましてはお気軽にお問合せください。
| 賃料 | *** | 管理費・共益費 | *** |
|---|---|---|---|
| 敷金/礼金 | *** / *** | 専有面積 | 26.45m² |
| 間取り | 1K | 階建 | ***/12階建 |
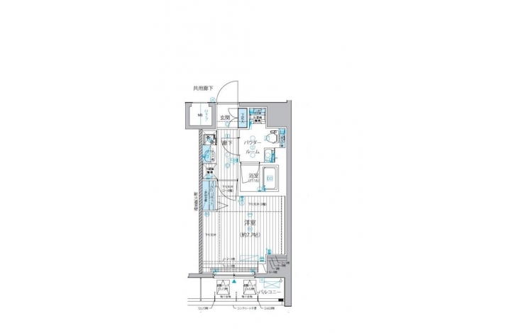
【間取り】
【洗面所】
【キッチン】
【リビング】
【風呂】
【その他部屋・スペース】
【玄関】
【バルコニー・ベランダ】
【収納】
【その他設備】
【トイレ】
【その他】
【外観】
【コンビ二】セブンイレブン 台東日本堤店 距離:252m
【コンビ二】セブンイレブン 台東日本堤2丁目店 距離:369m
【コンビ二】ポプラ 三ノ輪1丁目店 距離:461m
【コンビ二】ローソン 泪橋店 距離:461m
【コンビ二】セブンイレブン 台東日本堤店 距離:252m
【コンビ二】セブンイレブン 台東日本堤2丁目店 距離:369m
GoogleMapを読み込んでいます。
35.728684 139.795266
メインステージ三ノ輪III【満室】の詳細
| 賃料 | *** | 管理費・共益費 | *** |
|---|---|---|---|
| 敷金/保証金 | *** / *** | 礼金/償却・敷引 | *** / *** |
| 更新料 | *** | フリーレント | *** |
| その他費用 | *** | ||
| 所在地 | 東京都台東区日本堤2丁目 | ||
| 交通 |
東京地下鉄日比谷線「三ノ輪」 徒歩5分 東京地下鉄日比谷線「南千住」 徒歩13分 都営荒川線「三ノ輪橋」 徒歩9分 |
||
| 間取り | 1K | 間取り内訳 |
洋室 7.7 畳 洋室 7.7 畳 |
| 専有面積 | 26.45m² | バルコニー面積 | |
| 築年月(築年数) | 2022年03月(未入居) | 方位 | 北 |
| 建物構造 | RC(鉄筋コンクリート) | 所在階/階建 | ***/12階建 |
| 総戸数 | 50戸 | 駐車場 | |
| 保険料 | *** | 契約期間 | *** |
| 引渡 | 2025年04月 | ||
| 現況(予定年月) | 賃貸中 | ||
| 管理 | |||
| 設備・条件 | BSアンテナ、CSアンテナ、オートロック、TVドアホン、防犯カメラ、ディンプルキー、ダブルロックキー、宅配ボックス、バイク置き場、駐輪場、エレベータ、デザイナーズ、2階以上、角部屋、システムキッチン、バス・トイレ別、温水洗浄便座、浴室乾燥機、室内洗濯機置き場、洗濯機置き場有、フローリング、24時間換気システム、エアコン、バルコニー、分譲賃貸、敷金なし、ペット相談 | ||
| 備考 | 保証人代行:必須/クレディセゾン、賃料総額の50%~ | ||
| 周辺施設 |
まいばすけっと 千束4丁目店(距離:535m) スーパーシマダヤ日本堤店(距離:507m) セブンイレブン 台東日本堤店(距離:252m) ファミリーマート 南千住五丁目店(距離:357m) どらっぐぱぱす 三ノ輪店(距離:613m) |
||
| 物件番号 | 41141 | 取引態様 | 仲介 |
| 情報更新日 | *** | ||
| 次回更新予定日 | 情報更新日より15日以内 | ||


















COMMENTS FROM STAFFメインステージ三ノ輪III【満室】の
担当者コメント
東京の1人暮らしはアセットナビへ!自社ブランドマンションをはじめ、賃貸物件を数多くご紹介可能です。こちらの物件は、分譲賃貸マンションで設備が充実しております。オートロックシステムでセキュリティもバッチリです。