メインステージ富士見台【満室】 *** | 1R | ***
本情報は過去に掲載された物件の参考情報です。 最新の物件情報など詳細につきましてはお気軽にお問合せください。
| 賃料 | *** | 管理費・共益費 | *** |
|---|---|---|---|
| 敷金/礼金 | *** / *** | 専有面積 | 25.81m² |
| 間取り | 1R | 階建 | ***/5階建 |
メインステージ富士見台【満室】の詳細
| 賃料 | *** | 管理費・共益費 | *** |
|---|---|---|---|
| 敷金/保証金 | *** / *** | 礼金/償却・敷引 | *** / *** |
| 更新料 | *** | フリーレント | *** |
| その他費用 | *** | ||
| 所在地 | 東京都練馬区貫井3丁目 | ||
| 交通 |
西武池袋・豊島線「富士見台」 徒歩2分 西武池袋・豊島線「中村橋」 徒歩10分 西武鉄道新宿線「下井草」 徒歩25分 |
||
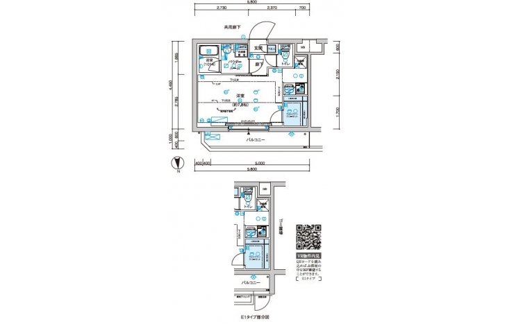
| 間取り | 1R | 間取り内訳 |
洋室 7.8 畳 |
| 専有面積 | 25.81m² | バルコニー面積 | |
| 築年月(築年数) | 2022年02月(築3年) | 方位 | 北 |
| 建物構造 | RC(鉄筋コンクリート) | 所在階/階建 | ***/5階建 |
| 総戸数 | 38戸 | 駐車場 | |
| 保険料 | *** | 契約期間 | *** |
| 引渡 | 即時 | ||
| 現況(予定年月) | 空室 | ||
| 管理 | 管理人/巡回、 | ||
| 設備・条件 | BSアンテナ、CSアンテナ、オートロック、TVドアホン、防犯カメラ、ディンプルキー、宅配ボックス、バイク置き場、駐輪場、エレベータ、デザイナーズ、システムキッチン、バス・トイレ別、温水洗浄便座、浴室乾燥機、室内洗濯機置き場、フローリング、24時間換気システム、エアコン、ウォークインクローゼット、バルコニー、分譲賃貸、礼金なし、敷金なし、ペット相談 | ||
| 備考 | 保証人代行:必須/エポスカード、総賃料の50%~ | ||
| 周辺施設 |
まいばすけっと 富士見台駅北店(距離:103m) ファミリーマート 富士見台駅前店(距離:156m) セブンイレブン 練馬富士見台駅南店(距離:223m) Big-A 練馬貫井店(距離:168m) マツモトキヨシ 富士見台駅前店(距離:237m) |
||
| 物件番号 | 54146 | 取引態様 | 仲介 |
| 情報更新日 | *** | ||
| 次回更新予定日 | 情報更新日より15日以内 | ||


















COMMENTS FROM STAFFメインステージ富士見台【満室】の
担当者コメント
東京の1人暮らしはアセットナビへ!自社ブランドマンションをはじめ、賃貸物件を数多くご紹介可能です。こちらの物件は、分譲賃貸マンションで設備が充実しております。オートロックシステムでセキュリティもバッチリです。