本情報は過去に掲載された物件の参考情報です。 最新の物件情報など詳細につきましてはお気軽にお問合せください。
| 賃料 | *** | 管理費・共益費 | *** |
|---|---|---|---|
| 敷金/礼金 | *** / *** | 専有面積 | 20.72m² |
| 間取り | 1K | 階建 | ***/6階建 |
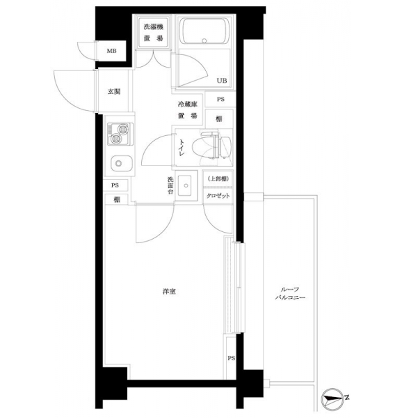
【間取り】
【洗面所】
【キッチン】※参考写真
【リビング】※参考写真
【風呂】※参考写真
【ベッドルーム】※参考写真
【玄関】
【トイレ】※参考写真
【その他設備】
【外観】外観・土地
【エントランス】玄関
【ロビー】
【その他共有部分】
【スーパー】まいばすけっと 蒲田キネマ通り店 距離:401m
【スーパー】maruetsu(マルエツ) 西糀谷店 距離:352m
【コンビ二】セブンイレブン 大田区東蒲田キネマ通り店 距離:33m
【コンビ二】セブンイレブン 大田区西糀谷1丁目店 距離:280m
【ドラックストア】ツルハドラッグ 東蒲田店 距離:286m
GoogleMapを読み込んでいます。
35.562055 139.730060
ルーブル東蒲田七番館【満室】の詳細
| 賃料 | *** | 管理費・共益費 | *** |
|---|---|---|---|
| 敷金/保証金 | *** / *** | 礼金/償却・敷引 | *** / *** |
| 更新料 | *** | フリーレント | *** |
| その他費用 | *** | ||
| 所在地 | 東京都大田区東蒲田2丁目 | ||
| 交通 |
京浜急行電鉄本線「京急蒲田」 徒歩8分 京浜急行電鉄本線「梅屋敷(東京)」 徒歩10分 京浜急行電鉄本線「大森町」 徒歩19分 |
||
| 間取り | 1K | 間取り内訳 |
洋室 6 畳 5 階 K 2 畳 5 階 |
| 専有面積 | 20.72m² | バルコニー面積 | |
| 築年月(築年数) | 2013年10月(築12年) | 方位 | 北 |
| 建物構造 | RC(鉄筋コンクリート) | 所在階/階建 | ***/6階建 |
| 総戸数 | 68戸 | 駐車場 | |
| 保険料 | *** | 契約期間 | *** |
| 引渡 | 2024年07月 | ||
| 現況(予定年月) | 空室 | ||
| 管理 | 管理人/巡回、管理会社/(株)TFDコミュニティ | ||
| 設備・条件 | BSアンテナ、CSアンテナ、光ファイバー、オートロック、TVドアホン、防犯カメラ、ディンプルキー、ダブルロックキー、宅配ボックス、駐輪場、エレベータ、2階以上、システムキッチン、バス・トイレ別、温水洗浄便座、浴室乾燥機、室内洗濯機置き場、フローリング、24時間換気システム、エアコン、ルーフバルコニー、分譲賃貸、敷金なし | ||
| 備考 | 保証人代行:必須/初回保証料30%(家賃+管理費)年間保証料10,000円 ※学生初回保証料9,000円 | ||
| 周辺施設 |
まいばすけっと 蒲田キネマ通り店(距離:146m) ローソン 東蒲田二丁目店(距離:222m) ツルハドラッグ 東蒲田店(距離:506m) 京急ストア 蒲田店(距離:506m) クリエイトSD(エス・ディー) ウィングキッチン京急蒲田店(距離:609m) ライフ 京急蒲田駅前店(距離:494m) |
||
| 物件番号 | 51908 | 取引態様 | 仲介 |
| 情報更新日 | *** | ||
| 次回更新予定日 | 情報更新日より15日以内 | ||



















COMMENTS FROM STAFFルーブル東蒲田七番館【満室】の
担当者コメント
東京の1人暮らしはアセットナビへ!自社ブランドマンションをはじめ、賃貸物件を数多くご紹介可能です。こちらの物件は、分譲賃貸マンションで設備が充実しております。オートロックシステムでセキュリティもバッチリです。