メインステージ立川IV【満室】 *** | 1K | ***
本情報は過去に掲載された物件の参考情報です。 最新の物件情報など詳細につきましてはお気軽にお問合せください。
| 賃料 | *** | 管理費・共益費 | *** |
|---|---|---|---|
| 敷金/礼金 | *** / *** | 専有面積 | 20.66m² |
| 間取り | 1K | 階建 | ***/8階建 |
メインステージ立川IV【満室】の詳細
| 賃料 | *** | 管理費・共益費 | *** |
|---|---|---|---|
| 敷金/保証金 | *** / *** | 礼金/償却・敷引 | *** / *** |
| 更新料 | *** | フリーレント | *** |
| その他費用 | *** | ||
| 所在地 | 東京都立川市錦町1丁目 | ||
| 交通 |
中央本線「立川」 徒歩9分 南武線「西国立」 徒歩8分 多摩モノレール「立川南」 徒歩11分 |
||
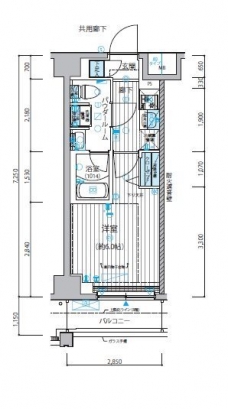
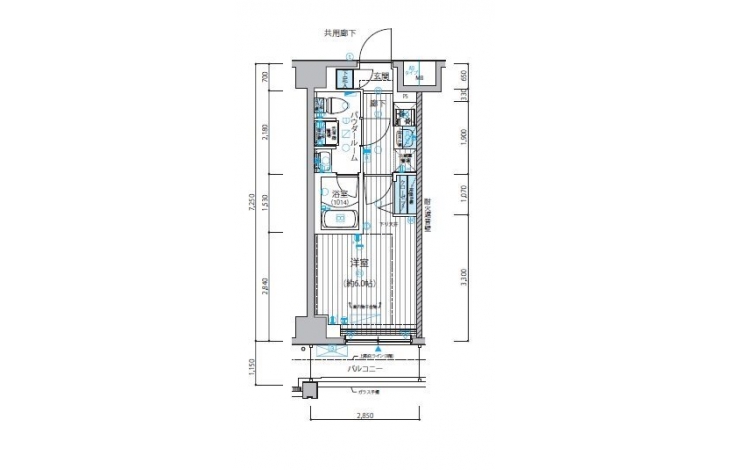
| 間取り | 1K | 間取り内訳 |
洋室 6 畳 K 2 畳 |
| 専有面積 | 20.66m² | バルコニー面積 | 3.99m² |
| 築年月(築年数) | 2020年08月(築5年) | 方位 | 南西 |
| 建物構造 | RC(鉄筋コンクリート) | 所在階/階建 | ***/8階建 |
| 総戸数 | 75戸 | 駐車場 | |
| 保険料 | *** | 契約期間 | *** |
| 引渡 | 2023年05月 | ||
| 現況(予定年月) | 居住中 | ||
| 管理 | 管理人/巡回、 | ||
| 設備・条件 | BSアンテナ、CSアンテナ、オートロック、TVドアホン、防犯カメラ、宅配ボックス、バイク置き場、駐輪場、エレベータ、2階以上、最上階、システムキッチン、バス・トイレ別、温水洗浄便座、浴室乾燥機、室内洗濯機置き場、フローリング、24時間換気システム、エアコン、バルコニー、分譲賃貸、ルームシェア相談 | ||
| 備考 | 保証人代行:必須/総賃料50%~ | ||
| 周辺施設 |
北野エ-ス グランデュオ立川店(距離:548m) サミットストア 羽衣いちょう通り店(距離:652m) ローソン 錦町一丁目店(距離:131m) セブンイレブン 立川通り店(距離:246m) スギドラッグ 立川錦町店(距離:289m) |
||
| 物件番号 | 35692 | 取引態様 | 仲介 |
| 情報更新日 | *** | ||
| 次回更新予定日 | 情報更新日より15日以内 | ||


















COMMENTS FROM STAFFメインステージ立川IV【満室】の
担当者コメント
東京の1人暮らしはアセットナビへ!自社ブランドマンションをはじめ、賃貸物件を数多くご紹介可能です。こちらの物件は、分譲賃貸マンションで設備が充実しております。オートロックシステムでセキュリティもバッチリです。