本情報は過去に掲載された物件の参考情報です。 最新の物件情報など詳細につきましてはお気軽にお問合せください。
| 賃料 | *** | 管理費・共益費 | *** |
|---|---|---|---|
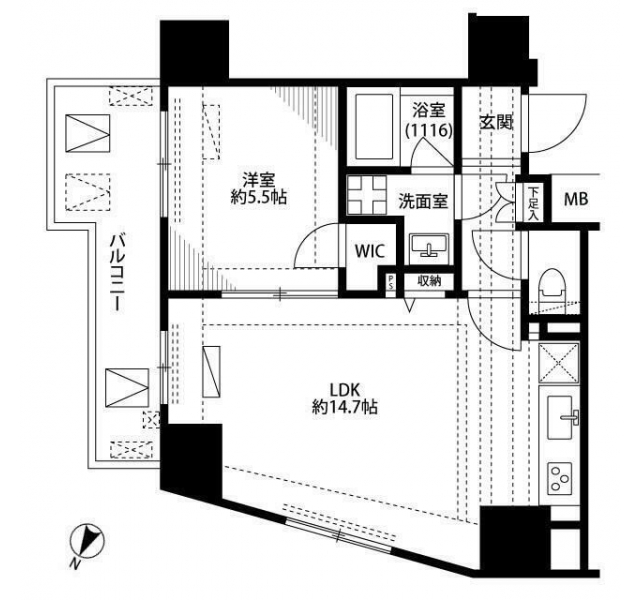
| 敷金/礼金 | *** / *** | 専有面積 | 43.95m² |
| 間取り | 1LDK | 階建 | ***/13階建 |
【間取り】間取図
【その他部屋・スペース】
【キッチン】キッチン
【リビング】居室
【風呂】バス
【洗面所】寝室
【玄関】
【バルコニー・ベランダ】
【収納】
【トイレ】
【風呂】
【その他設備】設備
【収納】収納
【その他設備】
【外観】外観・土地
【セキュリティ】
【ロビー】その他共有部分
【エントランス】エントランス
【その他共有部分】ロビー
【エントランス】
【外観】
【コンビ二】セブンイレブン 台東日本堤店 距離:191m
【コンビ二】ポプラ 三ノ輪1丁目店 距離:262m
【スーパー】まいばすけっと 千束4丁目店 距離:438m
【スーパー】まいばすけっと 三ノ輪店 距離:551m
【スーパー】アコレ 三ノ輪駅北店 距離:510m
GoogleMapを読み込んでいます。
35.727694 139.794178
プレール・ドゥーク東京イーストV【満室】の詳細
| 賃料 | *** | 管理費・共益費 | *** |
|---|---|---|---|
| 敷金/保証金 | *** / *** | 礼金/償却・敷引 | *** / *** |
| 更新料 | *** | フリーレント | *** |
| その他費用 | *** | ||
| 所在地 | 東京都台東区三ノ輪1丁目 | ||
| 交通 |
東京地下鉄日比谷線「三ノ輪」 徒歩8分 常磐線「南千住」 徒歩11分 都営荒川線「三ノ輪橋」 徒歩9分 |
||
| 間取り | 1LDK | 間取り内訳 |
LDK 14.7 畳 洋室 5.5 畳 |
| 専有面積 | 43.95m² | バルコニー面積 | |
| 築年月(築年数) | 2010年03月(築15年) | 方位 | 東 |
| 建物構造 | RC(鉄筋コンクリート) | 所在階/階建 | ***/13階建 |
| 総戸数 | 66戸 | 駐車場 | 無 |
| 保険料 | *** | 契約期間 | *** |
| 引渡 | 2022年05月 | ||
| 現況(予定年月) | 居住中 | ||
| 管理 | 管理人/巡回、 | ||
| 設備・条件 | BSアンテナ、CSアンテナ、光ファイバー、オートロック、TVドアホン、防犯カメラ、宅配ボックス、駐輪場、エレベータ、デザイナーズ、閑静な住宅街、角部屋、システムキッチン、バス・トイレ別、温水洗浄便座、浴室乾燥機、室内洗濯機置き場、フローリング、エアコン、バルコニー、分譲賃貸 | ||
| 備考 | 保証人代行:必須/初回時家賃の80%~ | ||
| 周辺施設 |
セブンイレブン 台東日本堤店(距離:191m) ポプラ 三ノ輪1丁目店(距離:262m) まいばすけっと 千束4丁目店(距離:438m) まいばすけっと 三ノ輪店(距離:551m) アコレ 三ノ輪駅北店(距離:510m) |
||
| 物件番号 | 25464 | 取引態様 | 代理 |
| 情報更新日 | *** | ||
| 次回更新予定日 | 情報更新日より15日以内 | ||





















COMMENTS FROM STAFFプレール・ドゥーク東京イーストV【満室】の
担当者コメント
東京の1人暮らしはアセットナビへ!自社ブランドマンションをはじめ、賃貸物件を数多くご紹介可能です。こちらの物件は、分譲賃貸マンションで設備が充実しております。オートロックシステムでセキュリティもバッチリです。