メインステージ板橋蓮根II【満室】 *** | 1K | ***
本情報は過去に掲載された物件の参考情報です。 最新の物件情報など詳細につきましてはお気軽にお問合せください。
| 賃料 | *** | 管理費・共益費 | *** |
|---|---|---|---|
| 敷金/礼金 | *** / *** | 専有面積 | 25.95m² |
| 間取り | 1K | 階建 | ***/5階建 |
メインステージ板橋蓮根II【満室】の詳細
| 賃料 | *** | 管理費・共益費 | *** |
|---|---|---|---|
| 敷金/保証金 | *** / *** | 礼金/償却・敷引 | *** / *** |
| 更新料 | *** | フリーレント | *** |
| その他費用 | *** | ||
| 所在地 | 東京都板橋区坂下3丁目 | ||
| 交通 |
都営三田線「蓮根」 徒歩8分 都営三田線「西台」 徒歩13分 都営三田線「志村三丁目」 徒歩13分 |
||
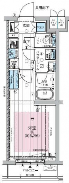
| 間取り | 1K | 間取り内訳 |
洋室 8.2 畳 3 階 |
| 専有面積 | 25.95m² | バルコニー面積 | |
| 築年月(築年数) | 2015年11月(築10年) | 方位 | 南 |
| 建物構造 | RC(鉄筋コンクリート) | 所在階/階建 | ***/5階建 |
| 総戸数 | 110戸 | 駐車場 | |
| 保険料 | *** | 契約期間 | *** |
| 引渡 | 即時 | ||
| 現況(予定年月) | 空室 | ||
| 管理 | 管理人/巡回、 | ||
| 設備・条件 | BSアンテナ、CSアンテナ、光ファイバー、オートロック、TVドアホン、防犯カメラ、ディンプルキー、ダブルロックキー、宅配ボックス、バイク置き場、駐輪場、エレベータ、2階以上、南向き部屋、システムキッチン、バス・トイレ別、浴室乾燥機、室内洗濯機置き場、洗濯機置き場有、24時間換気システム、エアコン、分譲賃貸、礼金なし、敷金なし、ペット相談 | ||
| 備考 | 保証人代行:必須/総賃料の50%~ | ||
| 周辺施設 |
ファミリーマート 坂下二丁目店(距離:153m) セブンイレブン 蓮根店(距離:697m) 西友 蓮根坂下店(距離:301m) アコレ 蓮根店(距離:573m) スギドラッグ 志村坂下店(距離:739m) |
||
| 物件番号 | 64028 | 取引態様 | 仲介 |
| 情報更新日 | *** | ||
| 次回更新予定日 | 情報更新日より15日以内 | ||


















COMMENTS FROM STAFFメインステージ板橋蓮根II【満室】の
担当者コメント
東京の1人暮らしはアセットナビへ!自社ブランドマンションをはじめ、賃貸物件を数多くご紹介可能です。こちらの物件は、分譲賃貸マンションで設備が充実しております。オートロックシステムでセキュリティもバッチリです。