メインステージ川口WEST【満室】 *** | 1K | ***
本情報は過去に掲載された物件の参考情報です。 最新の物件情報など詳細につきましてはお気軽にお問合せください。
| 賃料 | *** | 管理費・共益費 | *** |
|---|---|---|---|
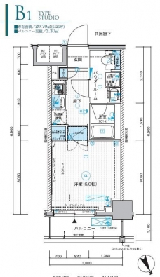
| 敷金/礼金 | *** / *** | 専有面積 | 20.70m² |
| 間取り | 1K | 階建 | ***/8階建 |
メインステージ川口WEST【満室】の詳細
| 賃料 | *** | 管理費・共益費 | *** |
|---|---|---|---|
| 敷金/保証金 | *** / *** | 礼金/償却・敷引 | *** / *** |
| 更新料 | *** | フリーレント | *** |
| その他費用 | *** | ||
| 所在地 | 埼玉県川口市並木2丁目 | ||
| 交通 |
京浜東北・根岸線「西川口」 徒歩5分 京浜東北・根岸線「川口」 徒歩23分 京浜東北・根岸線「蕨」 徒歩30分 |
||
| 間取り | 1K | 間取り内訳 |
洋室 6 畳 |
| 専有面積 | 20.70m² | バルコニー面積 | |
| 築年月(築年数) | 2016年09月(築9年) | 方位 | 南西 |
| 建物構造 | RC(鉄筋コンクリート) | 所在階/階建 | ***/8階建 |
| 総戸数 | 103戸 | 駐車場 | |
| 保険料 | *** | 契約期間 | *** |
| 引渡 | 即時 | ||
| 現況(予定年月) | 空室 | ||
| 管理 | |||
| 設備・条件 | BSアンテナ、CSアンテナ、光ファイバー、オートロック、TVドアホン、防犯カメラ、ディンプルキー、ダブルロックキー、宅配ボックス、駐輪場、エレベータ、デザイナーズ、2階以上、システムキッチン、バス・トイレ別、温水洗浄便座、浴室乾燥機、室内洗濯機置き場、フローリング、24時間換気システム、エアコン、バルコニー、分譲賃貸、礼金なし、敷金なし、ペット相談 | ||
| 備考 | 保証人代行:必須/総賃料の50%~ | ||
| 周辺施設 |
ファミリーマート 西川口陸橋西店(距離:474m) まいばすけっと 西川口駅西口店(距離:496m) イトーヨーカドー 西川口店(距離:677m) サンドラッグ 西川口店(距離:632m) セブンイレブン 西川口中央通り店(距離:731m) |
||
| 物件番号 | 53009 | 取引態様 | 仲介 |
| 情報更新日 | *** | ||
| 次回更新予定日 | 情報更新日より15日以内 | ||
















COMMENTS FROM STAFFメインステージ川口WEST【満室】の
担当者コメント
東京の1人暮らしはアセットナビへ!自社ブランドマンションをはじめ、賃貸物件を数多くご紹介可能です。こちらの物件は、分譲賃貸マンションで設備が充実しております。オートロックシステムでセキュリティもバッチリです。