ルーブル荻窪【満室】 *** | 1K | ***
本情報は過去に掲載された物件の参考情報です。 最新の物件情報など詳細につきましてはお気軽にお問合せください。
| 賃料 | *** | 管理費・共益費 | *** |
|---|---|---|---|
| 敷金/礼金 | *** / *** | 専有面積 | 20.25m² |
| 間取り | 1K | 階建 | ***/5階建 |
ルーブル荻窪【満室】の詳細
| 賃料 | *** | 管理費・共益費 | *** |
|---|---|---|---|
| 敷金/保証金 | *** / *** | 礼金/償却・敷引 | *** / *** |
| 更新料 | *** | フリーレント | *** |
| その他費用 | *** | ||
| 所在地 | 東京都杉並区南荻窪3丁目 | ||
| 交通 |
中央本線「荻窪」 徒歩9分 東京地下鉄丸ノ内線「荻窪」 徒歩9分 中央本線「西荻窪」 徒歩15分 |
||
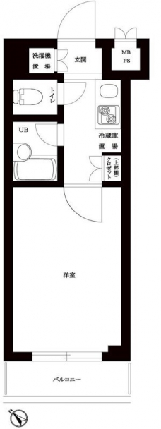
| 間取り | 1K | 間取り内訳 |
K 2 畳 洋室 6 畳 |
| 専有面積 | 20.25m² | バルコニー面積 | |
| 築年月(築年数) | 2005年07月(築20年) | 方位 | 南西 |
| 建物構造 | RC(鉄筋コンクリート) | 所在階/階建 | ***/5階建 |
| 総戸数 | 29戸 | 駐車場 | |
| 保険料 | *** | 契約期間 | *** |
| 引渡 | 2022年05月 | ||
| 現況(予定年月) | 空室 | ||
| 管理 | 管理人/巡回、 | ||
| 設備・条件 | BSアンテナ、オートロック、防犯カメラ、宅配ボックス、駐輪場、エレベータ、デザイナーズ、バス・トイレ別、温水洗浄便座、浴室乾燥機、室内洗濯機置き場、フローリング、24時間換気システム、エアコン、バルコニー、分譲賃貸 | ||
| 備考 | 保証人代行:必須/初回保証料30%(家賃+管理費)年間保証料10,000円 ※学生初回保証料9,000円 | ||
| 周辺施設 |
Y’s mart(ワイズマート) 西荻窪店(距離:530m) まいばすけっと 南荻窪4丁目店(距離:447m) ローソン 南荻窪四丁目店(距離:230m) ミニストップ 南荻窪3丁目店(距離:230m) マツモトキヨシ 荻窪店(距離:779m) |
||
| 物件番号 | 24631 | 取引態様 | 仲介 |
| 情報更新日 | *** | ||
| 次回更新予定日 | 情報更新日より15日以内 | ||



















COMMENTS FROM STAFFルーブル荻窪【満室】の
担当者コメント
東京の1人暮らしはアセットナビへ!自社ブランドマンションをはじめ、賃貸物件を数多くご紹介可能です。こちらの物件は、分譲賃貸マンションで設備が充実しております。オートロックシステムでセキュリティもバッチリです。