メインステージときわ台II【満室】 *** | 1K | ***
本情報は過去に掲載された物件の参考情報です。 最新の物件情報など詳細につきましてはお気軽にお問合せください。
| 賃料 | *** | 管理費・共益費 | *** |
|---|---|---|---|
| 敷金/礼金 | *** / *** | 専有面積 | 23.82m² |
| 間取り | 1K | 階建 | ***/6階建 |
メインステージときわ台II【満室】の詳細
| 賃料 | *** | 管理費・共益費 | *** |
|---|---|---|---|
| 敷金/保証金 | *** / *** | 礼金/償却・敷引 | *** / *** |
| 更新料 | *** | フリーレント | *** |
| その他費用 | *** | ||
| 所在地 | 東京都板橋区東山町 | ||
| 交通 |
東武鉄道東上線「ときわ台(東京)」 徒歩10分 東武鉄道東上線「中板橋」 徒歩13分 東京地下鉄副都心線「小竹向原」 徒歩15分 |
||
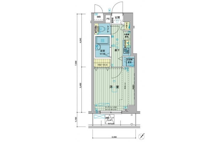
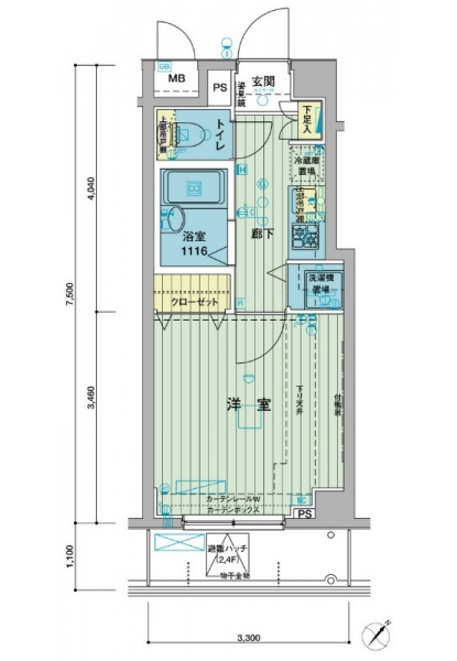
| 間取り | 1K | 間取り内訳 | |
| 専有面積 | 23.82m² | バルコニー面積 | |
| 築年月(築年数) | 2005年10月(築20年) | 方位 | 南東 |
| 建物構造 | RC(鉄筋コンクリート) | 所在階/階建 | ***/6階建 |
| 総戸数 | 49戸 | 駐車場 | |
| 保険料 | *** | 契約期間 | *** |
| 引渡 | 2023年04月 | ||
| 現況(予定年月) | 居住中 | ||
| 管理 | 管理人/巡回、 | ||
| 設備・条件 | CSアンテナ、オートロック、防犯カメラ、宅配ボックス、駐輪場、エレベータ、2階以上、システムキッチン、バス・トイレ別、温水洗浄便座、室内洗濯機置き場、フローリング、エアコン、バルコニー、分譲賃貸 | ||
| 備考 | 保証人代行:必須/総賃料の50%~ | ||
| 周辺施設 |
コモディイイダ 東新町店(距離:169m) OK(オーケー) 大谷口店(距離:482m) ファミリーマート 板橋大谷口北町店(距離:449m) セブンイレブン 板橋東山町店(距離:544m) ヘルスケアセイジョー ときわ台店(距離:800m) |
||
| 物件番号 | 34280 | 取引態様 | 仲介 |
| 情報更新日 | *** | ||
| 次回更新予定日 | 情報更新日より15日以内 | ||





















COMMENTS FROM STAFFメインステージときわ台II【満室】の
担当者コメント
東京の1人暮らしはアセットナビへ!自社ブランドマンションをはじめ、賃貸物件を数多くご紹介可能です。こちらの物件は、分譲賃貸マンションで設備が充実しております。オートロックシステムでセキュリティもバッチリです。