本情報は過去に掲載された物件の参考情報です。 最新の物件情報など詳細につきましてはお気軽にお問合せください。
| 賃料 | *** | 管理費・共益費 | *** |
|---|---|---|---|
| 敷金/礼金 | *** / *** | 専有面積 | 21.25m² |
| 間取り | 1K | 階建 | ***/14階建 |
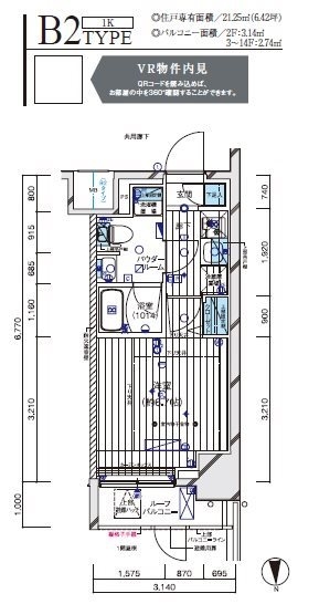
【間取り】
【キッチン】
【リビング】
【風呂】
【ベッドルーム】
【玄関】
【バルコニー・ベランダ】
【トイレ】
【収納】
【その他設備】別タイプのお部屋です
【その他】
【その他設備】
【キッチン】
【外観】
【セキュリティ】
【エントランス】
【その他共有部分】
【スーパー】ローソンストア100 LS立川羽衣町店 距離:395m
【スーパー】サミットストア 羽衣いちょう通り店 距離:730m
【コンビ二】ローソン 錦町一丁目店 距離:126m
【コンビ二】ファミリーマート 立川錦町店 距離:442m
【ドラックストア】スギドラッグ 立川錦町店 距離:257m
GoogleMapを読み込んでいます。
35.696415 139.420293
メインステージ立川V【満室】の詳細
| 賃料 | *** | 管理費・共益費 | *** |
|---|---|---|---|
| 敷金/保証金 | *** / *** | 礼金/償却・敷引 | *** / *** |
| 更新料 | *** | フリーレント | *** |
| その他費用 | *** | ||
| 所在地 | 東京都立川市錦町1丁目 | ||
| 交通 |
中央本線「立川」 徒歩9分 多摩モノレール「立川南」 徒歩10分 多摩モノレール「立川北」 徒歩14分 |
||
| 間取り | 1K | 間取り内訳 |
洋室 6.7 畳 K 2 畳 |
| 専有面積 | 21.25m² | バルコニー面積 | 2.74m² |
| 築年月(築年数) | 2020年10月(築5年) | 方位 | 北 |
| 建物構造 | RC(鉄筋コンクリート) | 所在階/階建 | ***/14階建 |
| 総戸数 | 駐車場 | ||
| 保険料 | *** | 契約期間 | *** |
| 引渡 | 即時 | ||
| 現況(予定年月) | 空室 | ||
| 管理 | 管理人/巡回、 | ||
| 設備・条件 | BSアンテナ、CSアンテナ、光ファイバー、オートロック、TVドアホン、防犯カメラ、ディンプルキー、ダブルロックキー、宅配ボックス、駐輪場、エレベータ、デザイナーズ、2階以上、角部屋、システムキッチン、バス・トイレ別、温水洗浄便座、浴室乾燥機、室内洗濯機置き場、洗濯機置き場有、フローリング、24時間換気システム、エアコン、バルコニー、分譲賃貸、日当たり良好、礼金なし、敷金なし、ペット相談 | ||
| 備考 | 保証人代行:必須/総賃料の50%~ | ||
| 周辺施設 |
ローソン 錦町一丁目店(距離:126m) ローソンストア100 LS立川羽衣町店(距離:395m) サミットストア 羽衣いちょう通り店(距離:730m) ファミリーマート 立川錦町店(距離:442m) スギドラッグ 立川錦町店(距離:257m) |
||
| 物件番号 | 39309 | 取引態様 | 仲介 |
| 情報更新日 | *** | ||
| 次回更新予定日 | 情報更新日より15日以内 | ||


















COMMENTS FROM STAFFメインステージ立川V【満室】の
担当者コメント
東京の1人暮らしはアセットナビへ!自社ブランドマンションをはじめ、賃貸物件を数多くご紹介可能です。こちらの物件は、分譲賃貸マンションで設備が充実しております。オートロックシステムでセキュリティもバッチリです。