本情報は過去に掲載された物件の参考情報です。 最新の物件情報など詳細につきましてはお気軽にお問合せください。
| 賃料 | *** | 管理費・共益費 | *** |
|---|---|---|---|
| 敷金/礼金 | *** / *** | 専有面積 | 25.63m² |
| 間取り | 1K | 階建 | ***/13階建 |
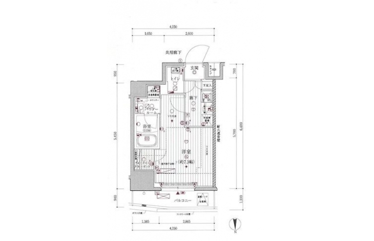
【間取り】
【リビング】※別フロアのお写真です
【キッチン】※別フロアのお写真です
【風呂】※別フロアのお写真です
【トイレ】※別フロアのお写真です
【洗面所】※別タイプのお部屋
【その他部屋・スペース】※別フロアのお写真です
【バルコニー・ベランダ】※別フロアのお写真です
【収納】※別フロアのお写真です
【その他設備】
【その他】
【風呂】※別フロアのお写真です
【キッチン】※別フロアのお写真です
【外観】
【その他共有部分】
【コンビ二】ファミリーマート 千束三丁目店 距離:243m
【スーパー】まいばすけっと 竜泉1丁目店 距離:287m
【コンビ二】ミニストップ 入谷2丁目店 距離:290m
【スーパー】まいばすけっと 千束3丁目店 距離:283m
【スーパー】肉のハナマサ 千束店 距離:342m
【コンビ二】ファミリーマート 台東吉原店 距離:385m
GoogleMapを読み込んでいます。
35.723293 139.791320
メインステージ浅草国際通り【満室】の詳細
| 賃料 | *** | 管理費・共益費 | *** |
|---|---|---|---|
| 敷金/保証金 | *** / *** | 礼金/償却・敷引 | *** / *** |
| 更新料 | *** | フリーレント | *** |
| その他費用 | *** | ||
| 所在地 | 東京都台東区千束3丁目 | ||
| 交通 |
東京地下鉄日比谷線「三ノ輪」 徒歩9分 東京地下鉄日比谷線「入谷(東京)」 徒歩11分 つくばエクスプレス「浅草」 徒歩14分 |
||
| 間取り | 1K | 間取り内訳 |
K 2 畳 洋室 7.3 畳 |
| 専有面積 | 25.63m² | バルコニー面積 | |
| 築年月(築年数) | 2021年10月(未入居) | 方位 | 北 |
| 建物構造 | RC(鉄筋コンクリート) | 所在階/階建 | ***/13階建 |
| 総戸数 | 61戸 | 駐車場 | |
| 保険料 | *** | 契約期間 | *** |
| 引渡 | 即時 | ||
| 現況(予定年月) | 空室 | ||
| 管理 | |||
| 設備・条件 | 光ファイバー、オートロック、TVドアホン、防犯カメラ、宅配ボックス、エレベータ、システムキッチン、バス・トイレ別、浴室乾燥機、室内洗濯機置き場、フローリング、24時間換気システム、エアコン、バルコニー | ||
| 備考 | 保証人代行:必須/総賃料の50%~ | ||
| 周辺施設 |
ファミリーマート 千束三丁目店(距離:243m) まいばすけっと 竜泉1丁目店(距離:287m) ミニストップ 入谷2丁目店(距離:290m) まいばすけっと 千束3丁目店(距離:283m) 肉のハナマサ 千束店(距離:342m) ファミリーマート 台東吉原店(距離:385m) |
||
| 物件番号 | 19269 | 取引態様 | 代理 |
| 情報更新日 | *** | ||
| 次回更新予定日 | 情報更新日より15日以内 | ||




















COMMENTS FROM STAFFメインステージ浅草国際通り【満室】の
担当者コメント
東京の1人暮らしはアセットナビへ!自社ブランドマンションをはじめ、賃貸物件を数多くご紹介可能です。こちらの物件は、分譲賃貸マンションで設備が充実しております。オートロックシステムでセキュリティもバッチリです。