クレイシア日本橋水天宮前【満室】 *** | 1K | ***
本情報は過去に掲載された物件の参考情報です。 最新の物件情報など詳細につきましてはお気軽にお問合せください。
| 賃料 | *** | 管理費・共益費 | *** |
|---|---|---|---|
| 敷金/礼金 | *** / *** | 専有面積 | 25.27m² |
| 間取り | 1K | 階建 | ***/10階建 |
クレイシア日本橋水天宮前【満室】の詳細
| 賃料 | *** | 管理費・共益費 | *** |
|---|---|---|---|
| 敷金/保証金 | *** / *** | 礼金/償却・敷引 | *** / *** |
| 更新料 | *** | フリーレント | *** |
| その他費用 | *** | ||
| 所在地 | 東京都中央区日本橋箱崎町 | ||
| 交通 |
東京地下鉄半蔵門線「水天宮前」 徒歩3分 東京地下鉄日比谷線「茅場町」 徒歩6分 都営浅草線「人形町」 徒歩13分 |
||
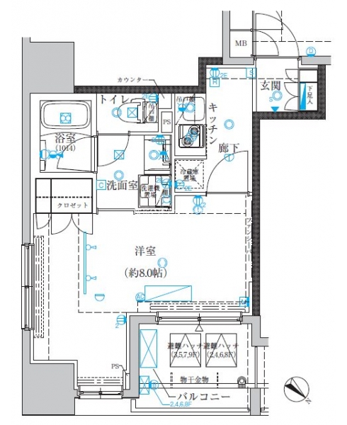
| 間取り | 1K | 間取り内訳 |
K 1.5 畳 洋室 8 畳 |
| 専有面積 | 25.27m² | バルコニー面積 | |
| 築年月(築年数) | 2018年12月(築7年) | 方位 | 北東 |
| 建物構造 | RC(鉄筋コンクリート) | 所在階/階建 | ***/10階建 |
| 総戸数 | 34戸 | 駐車場 | |
| 保険料 | *** | 契約期間 | *** |
| 引渡 | 即時 | ||
| 現況(予定年月) | 空室 | ||
| 管理 | |||
| 設備・条件 | BSアンテナ、CSアンテナ、オートロック、防犯カメラ、ディンプルキー、ダブルロックキー、宅配ボックス、バイク置き場、駐輪場、エレベータ、2階以上、角部屋、システムキッチン、バス・トイレ別、温水洗浄便座、浴室乾燥機、室内洗濯機置き場、フローリング、24時間換気システム、エアコン、バルコニー、分譲賃貸 | ||
| 備考 | 保証人代行:必須/管理会社指定:詳細はお問い合わせください。 | ||
| 周辺施設 |
まいばすけっと 日本橋箱崎町店(距離:334m) ローソン メトロス水天宮前店(距離:383m) まいばすけっと 日本橋蛎殻町店(距離:473m) ローソン 日本橋箱崎店(距離:234m) 水天宮ファーマシィ(距離:650m) |
||
| 物件番号 | 23394 | 取引態様 | 代理 |
| 情報更新日 | *** | ||
| 次回更新予定日 | 情報更新日より15日以内 | ||

















COMMENTS FROM STAFFクレイシア日本橋水天宮前【満室】の
担当者コメント
東京の1人暮らしはアセットナビへ!自社ブランドマンションをはじめ、賃貸物件を数多くご紹介可能です。こちらの物件は、人気のマンションで設備が充実しております。オートロックシステムでセキュリティもバッチリです。