メインステージ本蓮沼【満室】 *** | 2LDK | ***
本情報は過去に掲載された物件の参考情報です。 最新の物件情報など詳細につきましてはお気軽にお問合せください。
| 賃料 | *** | 管理費・共益費 | *** |
|---|---|---|---|
| 敷金/礼金 | *** / *** | 専有面積 | 55.94m² |
| 間取り | 2LDK | 階建 | ***/5階建 |
メインステージ本蓮沼【満室】の詳細
| 賃料 | *** | 管理費・共益費 | *** |
|---|---|---|---|
| 敷金/保証金 | *** / *** | 礼金/償却・敷引 | *** / *** |
| 更新料 | *** | フリーレント | *** |
| その他費用 | *** | ||
| 所在地 | 東京都板橋区泉町 | ||
| 交通 |
都営三田線「本蓮沼」 徒歩4分 都営三田線「板橋本町」 徒歩10分 都営三田線「志村坂上」 徒歩18分 |
||
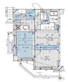
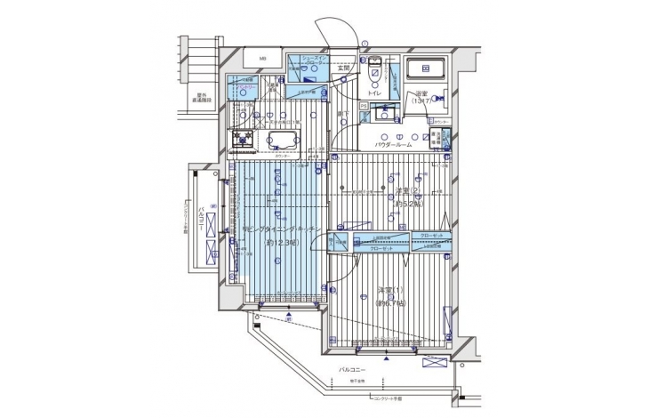
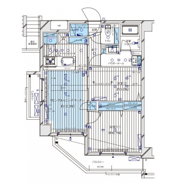
| 間取り | 2LDK | 間取り内訳 |
洋室 6.6 畳 洋室 5.2 畳 LDK 12.3 畳 |
| 専有面積 | 55.94m² | バルコニー面積 | 2.70m² |
| 築年月(築年数) | 2021年08月(築4年) | 方位 | 北 |
| 建物構造 | RC(鉄筋コンクリート) | 所在階/階建 | ***/5階建 |
| 総戸数 | 43戸 | 駐車場 | 無 |
| 保険料 | *** | 契約期間 | *** |
| 引渡 | 即時 | ||
| 現況(予定年月) | 空室 | ||
| 管理 | 管理人/巡回、 | ||
| 設備・条件 | BSアンテナ、CSアンテナ、オートロック、TVドアホン、防犯カメラ、ディンプルキー、ダブルロックキー、宅配ボックス、駐輪場、エレベータ、角部屋、システムキッチン、バス・トイレ別、温水洗浄便座、浴室乾燥機、追い焚き、室内洗濯機置き場、フローリング、24時間換気システム、エアコン、バルコニー、分譲賃貸、ルームシェア相談 | ||
| 備考 | 保証人代行:必須/総賃料の50%~ | ||
| 周辺施設 |
東武ストア 本蓮沼駅前店(距離:288m) ファミリーマート 本蓮沼駅前店(距離:412m) ローソン 本蓮沼駅前店(距離:447m) コモディイイダ 宮本町店(距離:326m) ドラッグストア マツモトキヨシ 板橋前野町店(距離:619m) |
||
| 物件番号 | 28476 | 取引態様 | 仲介 |
| 情報更新日 | *** | ||
| 次回更新予定日 | 情報更新日より15日以内 | ||



















COMMENTS FROM STAFFメインステージ本蓮沼【満室】の
担当者コメント
東京の1人暮らしはアセットナビへ!自社ブランドマンションをはじめ、賃貸物件を数多くご紹介可能です。こちらの物件は、分譲賃貸マンションで設備が充実しております。オートロックシステムでセキュリティもバッチリです。