メインステージ本蓮沼【満室】 *** | 1K | ***
本情報は過去に掲載された物件の参考情報です。 最新の物件情報など詳細につきましてはお気軽にお問合せください。
| 賃料 | *** | 管理費・共益費 | *** |
|---|---|---|---|
| 敷金/礼金 | *** / *** | 専有面積 | 25.65m² |
| 間取り | 1K | 階建 | ***/5階建 |
メインステージ本蓮沼【満室】の詳細
| 賃料 | *** | 管理費・共益費 | *** |
|---|---|---|---|
| 敷金/保証金 | *** / *** | 礼金/償却・敷引 | *** / *** |
| 更新料 | *** | フリーレント | *** |
| その他費用 | *** | ||
| 所在地 | 東京都板橋区泉町 | ||
| 交通 |
都営三田線「本蓮沼」 徒歩4分 都営三田線「板橋本町」 徒歩10分 東武鉄道東上線「中板橋」 徒歩20分 |
||
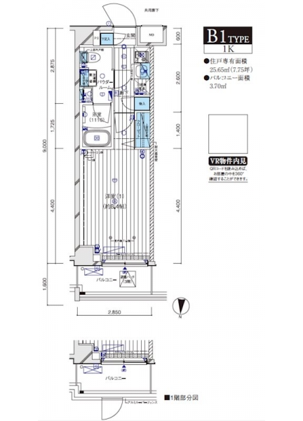
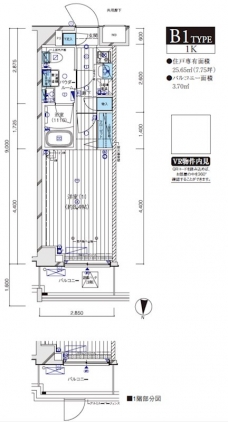
| 間取り | 1K | 間取り内訳 |
洋室 8.4 畳 |
| 専有面積 | 25.65m² | バルコニー面積 | 3.70m² |
| 築年月(築年数) | 2021年08月(未入居) | 方位 | 北 |
| 建物構造 | RC(鉄筋コンクリート) | 所在階/階建 | ***/5階建 |
| 総戸数 | 43戸 | 駐車場 | |
| 保険料 | *** | 契約期間 | *** |
| 引渡 | 即時 | ||
| 現況(予定年月) | 空室 | ||
| 管理 | 管理人/巡回、管理会社/青山ハウジングサポート(03-5281-4914) | ||
| 設備・条件 | BSアンテナ、CSアンテナ、オートロック、TVドアホン、防犯カメラ、ディンプルキー、ダブルロックキー、宅配ボックス、バイク置き場、駐輪場、エレベータ、システムキッチン、バス・トイレ別、温水洗浄便座、浴室乾燥機、室内洗濯機置き場、フローリング、24時間換気システム、エアコン、バルコニー、ルームシェア相談 | ||
| 備考 | 保証人代行:必須/50%~ | ||
| 周辺施設 |
コモディイイダ 宮本町店(距離:315m) 東武ストア 本蓮沼駅前店(距離:213m) ザ・ダイソー 本蓮沼駅前店(距離:249m) ファミリーマート 本蓮沼駅前店(距離:346m) ローソン 本蓮沼駅前店(距離:398m) 南條薬局(距離:353m) |
||
| 物件番号 | 18601 | 取引態様 | 代理 |
| 情報更新日 | *** | ||
| 次回更新予定日 | 情報更新日より15日以内 | ||



















COMMENTS FROM STAFFメインステージ本蓮沼【満室】の
担当者コメント
分譲賃貸マンション/オートロックシステムでセキュリティバッチリ/いつでも荷物が受け取れる宅配ボックス/インターネット無料/本蓮沼駅徒歩4分の好立地/浴室乾燥機つきで雨の日でも洗濯可/快適な独立洗面化粧台つき/周辺施設充実