フェニックス中板橋【満室】 *** | 2DK | ***
本情報は過去に掲載された物件の参考情報です。 最新の物件情報など詳細につきましてはお気軽にお問合せください。
| 賃料 | *** | 管理費・共益費 | *** |
|---|---|---|---|
| 敷金/礼金 | *** / *** | 専有面積 | 45.65m² |
| 間取り | 2DK | 階建 | ***/11階建 |
フェニックス中板橋【満室】の詳細
| 賃料 | *** | 管理費・共益費 | *** |
|---|---|---|---|
| 敷金/保証金 | *** / *** | 礼金/償却・敷引 | *** / *** |
| 更新料 | *** | フリーレント | *** |
| その他費用 | *** | ||
| 所在地 | 東京都板橋区大谷口上町 | ||
| 交通 |
東武鉄道東上線「中板橋」 徒歩9分 東武鉄道東上線「大山(東京)」 徒歩10分 東武鉄道東上線「ときわ台(東京)」 徒歩20分 |
||
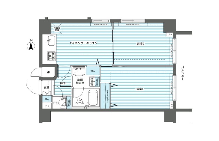
| 間取り | 2DK | 間取り内訳 |
洋室 7 畳 5 階 洋室 6.1 畳 5 階 DK 7.3 畳 5 階 |
| 専有面積 | 45.65m² | バルコニー面積 | 4.76m² |
| 築年月(築年数) | 2008年01月(築18年) | 方位 | 東 |
| 建物構造 | RC(鉄筋コンクリート) | 所在階/階建 | ***/11階建 |
| 総戸数 | 87戸 | 駐車場 | |
| 保険料 | *** | 契約期間 | *** |
| 引渡 | 相談 | ||
| 現況(予定年月) | 空室 | ||
| 管理 | |||
| 設備・条件 | CATV、オートロック、TVドアホン、防犯カメラ、ディンプルキー、ダブルロックキー、宅配ボックス、バイク置き場、駐輪場、エレベータ、2階以上、角部屋、システムキッチン、バス・トイレ別、温水洗浄便座、浴室乾燥機、追い焚き、室内洗濯機置き場、フローリング、24時間換気システム、エアコン、バルコニー、分譲賃貸 | ||
| 備考 | 保証人代行:必須/トーシンライフ、オリコフォレントインシュア、全保連/保証料:初回=賃料等×50%、月額=賃料等×1% | ||
| 周辺施設 |
サミットストア 板橋弥生町店(距離:284m) コモディイイダ 大山店(ハッピーロード)(距離:423m) |
||
| 物件番号 | 63012 | 取引態様 | 仲介 |
| 情報更新日 | *** | ||
| 次回更新予定日 | 情報更新日より15日以内 | ||




















COMMENTS FROM STAFFフェニックス中板橋【満室】の
担当者コメント
東京の1人暮らしはアセットナビへ!自社ブランドマンションをはじめ、賃貸物件を数多くご紹介可能です。こちらの物件は、分譲賃貸マンションで設備が充実しております。オートロックシステムでセキュリティもバッチリです。快適な独立洗面台つき。広々2DKタイプのお部屋。いつでも荷物が受け取れる宅配ボックス。雨の日でも洗濯物が干せる浴室乾燥機。お手入れラクラク温水洗浄便座。