ルーブル東武練馬弐番館【満室】 *** | 1K | ***
本情報は過去に掲載された物件の参考情報です。 最新の物件情報など詳細につきましてはお気軽にお問合せください。
| 賃料 | *** | 管理費・共益費 | *** |
|---|---|---|---|
| 敷金/礼金 | *** / *** | 専有面積 | 25.43m² |
| 間取り | 1K | 階建 | ***/6階建 |
ルーブル東武練馬弐番館【満室】の詳細
| 賃料 | *** | 管理費・共益費 | *** |
|---|---|---|---|
| 敷金/保証金 | *** / *** | 礼金/償却・敷引 | *** / *** |
| 更新料 | *** | フリーレント | *** |
| その他費用 | *** | ||
| 所在地 | 東京都板橋区徳丸3丁目 | ||
| 交通 |
東武鉄道東上線「東武練馬」 徒歩9分 東武鉄道東上線「下赤塚」 徒歩20分 東京地下鉄有楽町線「地下鉄赤塚」 徒歩23分 |
||
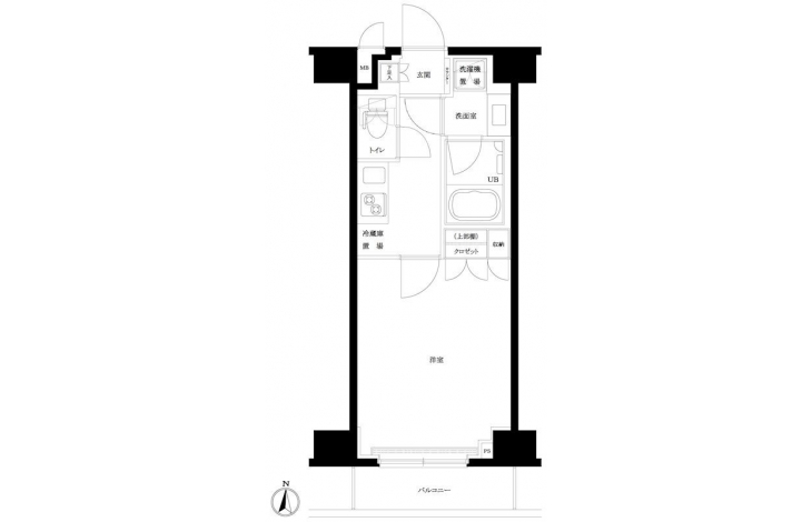
| 間取り | 1K | 間取り内訳 |
洋室 7.5 畳 K 2 畳 |
| 専有面積 | 25.43m² | バルコニー面積 | |
| 築年月(築年数) | 2021年07月(築4年) | 方位 | 南 |
| 建物構造 | RC(鉄筋コンクリート) | 所在階/階建 | ***/6階建 |
| 総戸数 | 駐車場 | ||
| 保険料 | *** | 契約期間 | *** |
| 引渡 | 2024年06月 | ||
| 現況(予定年月) | 居住中 | ||
| 管理 | |||
| 設備・条件 | BSアンテナ、CSアンテナ、光ファイバー、オートロック、宅配ボックス、駐輪場、エレベータ、デザイナーズ、2階以上、南向き部屋、システムキッチン、バス・トイレ別、温水洗浄便座、浴室乾燥機、室内洗濯機置き場、フローリング、24時間換気システム、エアコン、バルコニー、分譲賃貸、日当たり良好、敷金なし | ||
| 備考 | 保証人代行:必須/賃料総額の30%~ | ||
| 周辺施設 |
セブンイレブン 板橋徳丸2丁目店(距離:274m) セブンイレブン 板橋徳丸4丁目店(距離:359m) Welpark(ウェルパーク) 東武練馬店(距離:361m) AEONSTYLE(イオンスタイル)板橋(距離:590m) まいばすけっと 徳丸5丁目店(距離:570m) |
||
| 物件番号 | 49625 | 取引態様 | 仲介 |
| 情報更新日 | *** | ||
| 次回更新予定日 | 情報更新日より15日以内 | ||


















COMMENTS FROM STAFFルーブル東武練馬弐番館【満室】の
担当者コメント
東京の1人暮らしはアセットナビへ!自社ブランドマンションをはじめ、賃貸物件を数多くご紹介可能です。こちらの物件は、分譲賃貸マンションで設備が充実しております。オートロックシステムでセキュリティもバッチリです。