クレイシア板橋本町【満室】 *** | 1K | ***
本情報は過去に掲載された物件の参考情報です。 最新の物件情報など詳細につきましてはお気軽にお問合せください。
| 賃料 | *** | 管理費・共益費 | *** |
|---|---|---|---|
| 敷金/礼金 | *** / *** | 専有面積 | 25.43m² |
| 間取り | 1K | 階建 | ***/11階建 |
クレイシア板橋本町【満室】の詳細
| 賃料 | *** | 管理費・共益費 | *** |
|---|---|---|---|
| 敷金/保証金 | *** / *** | 礼金/償却・敷引 | *** / *** |
| 更新料 | *** | フリーレント | *** |
| その他費用 | *** | ||
| 所在地 | 東京都板橋区本町 | ||
| 交通 |
都営三田線「板橋本町」 徒歩4分 埼京線「十条(東京)」 徒歩18分 都営三田線「板橋区役所前」 徒歩18分 |
||
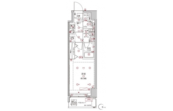
| 間取り | 1K | 間取り内訳 |
洋室 7.8 畳 |
| 専有面積 | 25.43m² | バルコニー面積 | |
| 築年月(築年数) | 2021年01月(築5年) | 方位 | 東 |
| 建物構造 | RC(鉄筋コンクリート) | 所在階/階建 | ***/11階建 |
| 総戸数 | 127戸 | 駐車場 | |
| 保険料 | *** | 契約期間 | *** |
| 引渡 | 2025年10月 | ||
| 現況(予定年月) | 居住中 | ||
| 管理 | 管理人/巡回、 | ||
| 設備・条件 | BSアンテナ、CSアンテナ、CATV、オートロック、TVドアホン、防犯カメラ、ディンプルキー、ダブルロックキー、宅配ボックス、バイク置き場、駐輪場、エレベータ、デザイナーズ、2階以上、システムキッチン、バス・トイレ別、温水洗浄便座、浴室乾燥機、室内洗濯機置き場、フローリング、24時間換気システム、エアコン、シューズインクローゼット、バルコニー、分譲賃貸 | ||
| 備考 | 保証人代行:必須/総賃料の40%~ | ||
| 周辺施設 |
アコレ 板橋本町店(距離:124m) セブンイレブン 板橋本町駅前店(距離:424m) mini(ミニ)ピアゴ 清水町店(距離:506m) ローソンストア100 LS板橋本町店(距離:458m) 調剤薬局 マツモトキヨシ 板橋帝京大前店(距離:615m) まいばすけっと 板橋本町駅南店(距離:572m) |
||
| 物件番号 | 63290 | 取引態様 | 仲介 |
| 情報更新日 | *** | ||
| 次回更新予定日 | 情報更新日より15日以内 | ||





















COMMENTS FROM STAFFクレイシア板橋本町【満室】の
担当者コメント
東京の1人暮らしはアセットナビへ!自社ブランドマンションをはじめ、賃貸物件を数多くご紹介可能です。こちらの物件は、分譲賃貸マンションで設備が充実しております。オートロックシステムでセキュリティもバッチリです。