メインステージ西葛西II【満室】 *** | 1K | ***
本情報は過去に掲載された物件の参考情報です。 最新の物件情報など詳細につきましてはお気軽にお問合せください。
| 賃料 | *** | 管理費・共益費 | *** |
|---|---|---|---|
| 敷金/礼金 | *** / *** | 専有面積 | 28.14m² |
| 間取り | 1K | 階建 | ***/10階建 |
メインステージ西葛西II【満室】の詳細
| 賃料 | *** | 管理費・共益費 | *** |
|---|---|---|---|
| 敷金/保証金 | *** / *** | 礼金/償却・敷引 | *** / *** |
| 更新料 | *** | フリーレント | *** |
| その他費用 | *** | ||
| 所在地 | 東京都江戸川区中葛西6丁目 | ||
| 交通 |
東京地下鉄東西線「西葛西」 徒歩10分 東京地下鉄東西線「葛西」 徒歩10分 京葉線「葛西臨海公園」 徒歩32分 |
||
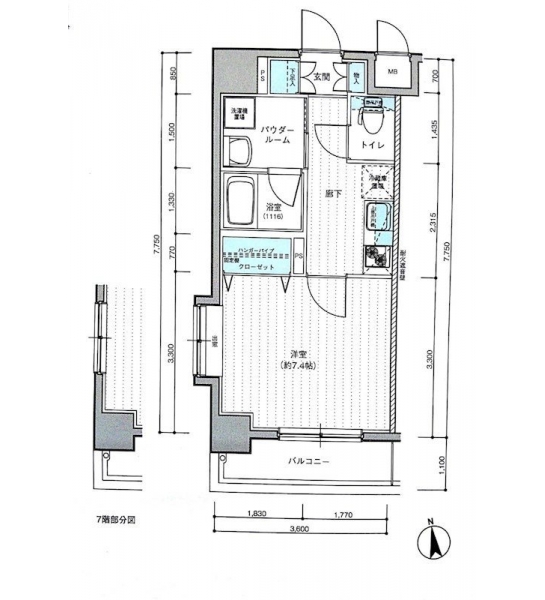
| 間取り | 1K | 間取り内訳 |
洋室 7.4 畳 K 2 畳 |
| 専有面積 | 28.14m² | バルコニー面積 | |
| 築年月(築年数) | 2004年09月(築21年) | 方位 | 南 |
| 建物構造 | SRC(鉄骨鉄筋コンクリート) | 所在階/階建 | ***/10階建 |
| 総戸数 | 駐車場 | ||
| 保険料 | *** | 契約期間 | *** |
| 引渡 | 2022年06月 | ||
| 現況(予定年月) | 空室 | ||
| 管理 | 管理人/巡回、 | ||
| 設備・条件 | CATV、オートロック、防犯カメラ、宅配ボックス、エレベータ、デザイナーズ、角部屋、システムキッチン、バス・トイレ別、温水洗浄便座、浴室乾燥機、追い焚き、室内洗濯機置き場、エアコン、バルコニー、分譲賃貸 | ||
| 備考 | 保証人代行:必須/賃料総額の50%~ | ||
| 周辺施設 |
ファミリーマート 中葛西清砂大橋通り店(距離:53m) ローソンストア100 LS葛西中央通店(距離:317m) ウエルシア江戸川中葛西店(距離:239m) ローソンストア100 LS葛西中央通店(距離:317m) まいばすけっと 葛西中央通り店(距離:427m) アコレ 西葛西6丁目店(距離:334m) |
||
| 物件番号 | 25287 | 取引態様 | 仲介 |
| 情報更新日 | *** | ||
| 次回更新予定日 | 情報更新日より15日以内 | ||





















COMMENTS FROM STAFFメインステージ西葛西II【満室】の
担当者コメント
東京の1人暮らしはアセットナビへ!自社ブランドマンションをはじめ、賃貸物件を数多くご紹介可能です。こちらの物件は、分譲賃貸マンションで設備が充実しております。オートロックシステムでセキュリティもバッチリです。