メインステージ練馬春日町【満室】 *** | 1LDK | ***
本情報は過去に掲載された物件の参考情報です。 最新の物件情報など詳細につきましてはお気軽にお問合せください。
| 賃料 | *** | 管理費・共益費 | *** |
|---|---|---|---|
| 敷金/礼金 | *** / *** | 専有面積 | 33.00m² |
| 間取り | 1LDK | 階建 | ***/5階建 |
メインステージ練馬春日町【満室】の詳細
| 賃料 | *** | 管理費・共益費 | *** |
|---|---|---|---|
| 敷金/保証金 | *** / *** | 礼金/償却・敷引 | *** / *** |
| 更新料 | *** | フリーレント | *** |
| その他費用 | *** | ||
| 所在地 | 東京都練馬区高松2丁目 | ||
| 交通 |
都営大江戸線「練馬春日町」 徒歩14分 西武池袋・豊島線「富士見台」 徒歩17分 西武池袋・豊島線「練馬高野台」 徒歩23分 |
||
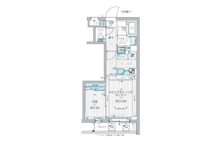
| 間取り | 1LDK | 間取り内訳 |
LDK 10.2 畳 洋室 3.1 畳 |
| 専有面積 | 33.00m² | バルコニー面積 | |
| 築年月(築年数) | 2021年07月(未入居) | 方位 | 西 |
| 建物構造 | RC(鉄筋コンクリート) | 所在階/階建 | ***/5階建 |
| 総戸数 | 50戸 | 駐車場 | |
| 保険料 | *** | 契約期間 | *** |
| 引渡 | 2021年08月 | ||
| 現況(予定年月) | 未完成 | ||
| 管理 | |||
| 設備・条件 | BSアンテナ、CSアンテナ、オートロック、TVドアホン、宅配ボックス、エレベータ、デザイナーズ、閑静な住宅街、システムキッチン、カウンターキッチン、バス・トイレ別、温水洗浄便座、浴室乾燥機、室内洗濯機置き場、フローリング、エアコン、バルコニー、分譲賃貸 | ||
| 備考 | 保証人代行:必須/総家賃の50%~ | ||
| 周辺施設 |
まいばすけっと練馬高松2丁目(距離:441m) ファミリーマート+練馬高松一丁目店(距離:530m) |
||
| 物件番号 | 17690 | 取引態様 | 代理 |
| 情報更新日 | *** | ||
| 次回更新予定日 | 情報更新日より15日以内 | ||


















COMMENTS FROM STAFFメインステージ練馬春日町【満室】の
担当者コメント
敷金礼金ゼロで初期費用が抑えられます/分譲賃貸マンション/オートロックシステムでセキュリティバッチリ/いつでも荷物が受け取れる宅配ボックス/可愛いペットと一緒に暮らせます/インターネット無料/浴室乾燥機つきで雨の日でも洗濯可/快適な独立洗面化粧台つき