メインステージ上野毛II【満室】 *** | 1K | ***
本情報は過去に掲載された物件の参考情報です。 最新の物件情報など詳細につきましてはお気軽にお問合せください。
| 賃料 | *** | 管理費・共益費 | *** |
|---|---|---|---|
| 敷金/礼金 | *** / *** | 専有面積 | 25.36m² |
| 間取り | 1K | 階建 | ***/9階建 |
メインステージ上野毛II【満室】の詳細
| 賃料 | *** | 管理費・共益費 | *** |
|---|---|---|---|
| 敷金/保証金 | *** / *** | 礼金/償却・敷引 | *** / *** |
| 更新料 | *** | フリーレント | *** |
| その他費用 | *** | ||
| 所在地 | 東京都世田谷区上野毛4丁目 | ||
| 交通 |
東急大井町線「上野毛」 徒歩6分 東急田園都市線「用賀」 徒歩17分 東急田園都市線「二子玉川」 徒歩19分 |
||
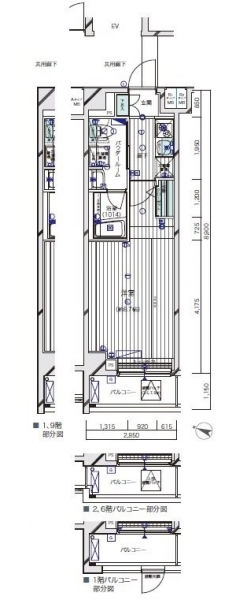
| 間取り | 1K | 間取り内訳 |
洋室 8.7 畳 |
| 専有面積 | 25.36m² | バルコニー面積 | |
| 築年月(築年数) | 2013年10月(築12年) | 方位 | 南西 |
| 建物構造 | RC(鉄筋コンクリート) | 所在階/階建 | ***/9階建 |
| 総戸数 | 51戸 | 駐車場 | 無 |
| 保険料 | *** | 契約期間 | *** |
| 引渡 | 2023年07月 | ||
| 現況(予定年月) | 居住中 | ||
| 管理 | 管理人/巡回、 | ||
| 設備・条件 | BSアンテナ、CSアンテナ、光ファイバー、オートロック、TVドアホン、防犯カメラ、ディンプルキー、ダブルロックキー、宅配ボックス、駐輪場、エレベータ、システムキッチン、バス・トイレ別、温水洗浄便座、浴室乾燥機、室内洗濯機置き場、フローリング、24時間換気システム、エアコン、バルコニー、分譲賃貸、敷金なし、ペット相談 | ||
| 備考 | 保証人代行:必須/賃料総額の50%~ | ||
| 周辺施設 |
スーパーオオゼキ上野毛店(距離:544m) セブンイレブン世田谷上野毛店(距離:310m) ヨークマート 中町店(距離:622m) ローソン 瀬田店(距離:417m) ドラッグストア マツモトキヨシ 上野毛店(距離:602m) |
||
| 物件番号 | 38837 | 取引態様 | 仲介 |
| 情報更新日 | *** | ||
| 次回更新予定日 | 情報更新日より15日以内 | ||





















COMMENTS FROM STAFFメインステージ上野毛II【満室】の
担当者コメント
東京の1人暮らしはアセットナビへ!自社ブランドマンションをはじめ、賃貸物件を数多くご紹介可能です。こちらの物件は、分譲賃貸マンションで設備が充実しております。オートロックシステムでセキュリティもバッチリです。