クレイシア赤羽【満室】 *** | 1K | ***
本情報は過去に掲載された物件の参考情報です。 最新の物件情報など詳細につきましてはお気軽にお問合せください。
| 賃料 | *** | 管理費・共益費 | *** |
|---|---|---|---|
| 敷金/礼金 | *** / *** | 専有面積 | 26.08m² |
| 間取り | 1K | 階建 | ***/15階建 |
クレイシア赤羽【満室】の詳細
| 賃料 | *** | 管理費・共益費 | *** |
|---|---|---|---|
| 敷金/保証金 | *** / *** | 礼金/償却・敷引 | *** / *** |
| 更新料 | *** | フリーレント | *** |
| その他費用 | *** | ||
| 所在地 | 東京都北区赤羽2丁目 | ||
| 交通 |
埼京線「赤羽」 徒歩6分 東京地下鉄南北線「赤羽岩淵」 徒歩3分 東京地下鉄南北線「志茂」 徒歩15分 |
||
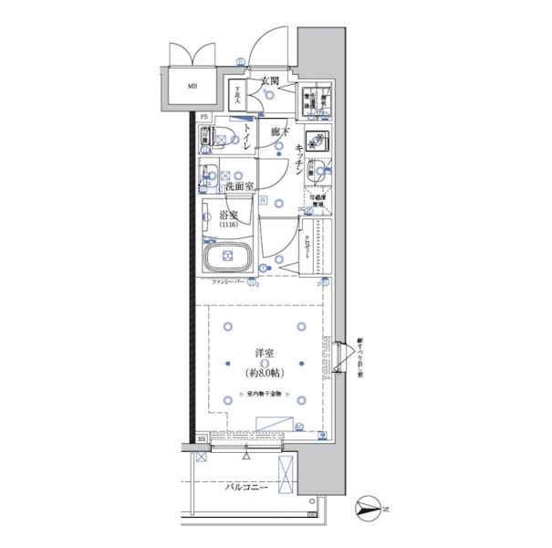
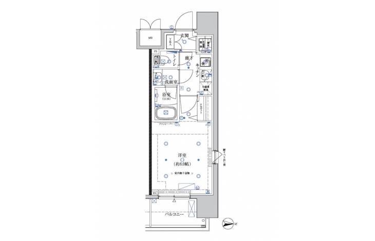
| 間取り | 1K | 間取り内訳 |
K 2 畳 洋室 8 畳 |
| 専有面積 | 26.08m² | バルコニー面積 | |
| 築年月(築年数) | 2020年04月(築5年) | 方位 | 東 |
| 建物構造 | RC(鉄筋コンクリート) | 所在階/階建 | ***/15階建 |
| 総戸数 | 47戸 | 駐車場 | |
| 保険料 | *** | 契約期間 | *** |
| 引渡 | 2024年05月 | ||
| 現況(予定年月) | 居住中 | ||
| 管理 | |||
| 設備・条件 | BSアンテナ、CSアンテナ、CATV、オートロック、防犯カメラ、ディンプルキー、ダブルロックキー、宅配ボックス、エレベータ、2階以上、角部屋、システムキッチン、バス・トイレ別、温水洗浄便座、浴室乾燥機、室内洗濯機置き場、フローリング、24時間換気システム、エアコン、バルコニー、敷金なし、ペット相談 | ||
| 備考 | 保証人代行:必須/総賃料の40%~ | ||
| 周辺施設 |
ファミリーマート 赤羽二丁目店(距離:100m) まいばすけっと 赤羽岩淵駅前店(距離:160m) プロマート 赤羽店(距離:250m) セブンイレブン 北区赤羽2丁目店(距離:364m) ダイエー赤羽店イオンフードスタイル(距離:433m) 西友 赤羽店(距離:468m) |
||
| 物件番号 | 47732 | 取引態様 | 仲介 |
| 情報更新日 | *** | ||
| 次回更新予定日 | 情報更新日より15日以内 | ||




















COMMENTS FROM STAFFクレイシア赤羽【満室】の
担当者コメント
東京の1人暮らしはアセットナビへ!自社ブランドマンションをはじめ、賃貸物件を数多くご紹介可能です。こちらの物件は、分譲賃貸マンションで設備が充実しております。オートロックシステムでセキュリティもバッチリです。※ペット飼育時保証金2ヶ月追加