DIPS墨田RIVERSIDE【満室】 *** | 1LDK | ***
本情報は過去に掲載された物件の参考情報です。 最新の物件情報など詳細につきましてはお気軽にお問合せください。
| 賃料 | *** | 管理費・共益費 | *** |
|---|---|---|---|
| 敷金/礼金 | *** / *** | 専有面積 | 42.36m² |
| 間取り | 1LDK | 階建 | ***/5階建 |
DIPS墨田RIVERSIDE【満室】の詳細
| 賃料 | *** | 管理費・共益費 | *** |
|---|---|---|---|
| 敷金/保証金 | *** / *** | 礼金/償却・敷引 | *** / *** |
| 更新料 | *** | フリーレント | *** |
| その他費用 | *** | ||
| 所在地 | 東京都墨田区東墨田2丁目 | ||
| 交通 |
京成電鉄押上線「八広」 徒歩7分 京成電鉄押上線「四ツ木」 徒歩19分 東武伊勢崎・大師線「東向島」 徒歩23分 |
||
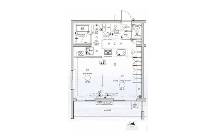
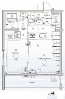
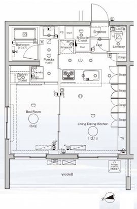
| 間取り | 1LDK | 間取り内訳 |
LDK 12.1 畳 4 階 洋室 6 畳 4 階 |
| 専有面積 | 42.36m² | バルコニー面積 | |
| 築年月(築年数) | 2016年12月(築9年) | 方位 | 西 |
| 建物構造 | RC(鉄筋コンクリート) | 所在階/階建 | ***/5階建 |
| 総戸数 | 36戸 | 駐車場 | |
| 保険料 | *** | 契約期間 | *** |
| 引渡 | 2025年08月 | ||
| 現況(予定年月) | 居住中 | ||
| 管理 | 管理人/巡回、 | ||
| 設備・条件 | オートロック、TVドアホン、ディンプルキー、宅配ボックス、バイク置き場、駐輪場、エレベータ、2階以上、角部屋、システムキッチン、カウンターキッチン、バス・トイレ別、温水洗浄便座、浴室乾燥機、追い焚き、室内洗濯機置き場、洗濯機置き場有、フローリング、24時間換気システム、エアコン、ウォークインクローゼット、シューズインクローゼット、バルコニー、分譲賃貸、礼金なし、敷金なし、ペット相談 | ||
| 備考 | 保証人代行:必須/初期費用:賃料合計の50% 月額手数料:賃料の1.5% 年間費用なし | ||
| 周辺施設 |
ビッグ・エー 墨田八広店(距離:317m) まいばすけっと 八広6丁目店(距離:337m) ファミリーマート 八広六丁目店(距離:313m) セブンイレブン 墨田八広5丁目店(距離:605m) くすりの福太郎 八広駅前店(距離:504m) |
||
| 物件番号 | 62275 | 取引態様 | 仲介 |
| 情報更新日 | *** | ||
| 次回更新予定日 | 情報更新日より15日以内 | ||



















COMMENTS FROM STAFFDIPS墨田RIVERSIDE【満室】の
担当者コメント
東京の1人暮らしはアセットナビへ!自社ブランドマンションをはじめ、賃貸物件を数多くご紹介可能です。こちらの物件は、分譲賃貸マンションで設備が充実しております。オートロックシステムでセキュリティもバッチリです。※ペット飼育の場合保証金1ヶ月追加(償却)※ペット飼育時は退去時に消臭消毒費用15,000円(税別)はご負担いただきます。