グランヴァン亀戸III【満室】 *** | 1K | ***
本情報は過去に掲載された物件の参考情報です。 最新の物件情報など詳細につきましてはお気軽にお問合せください。
| 賃料 | *** | 管理費・共益費 | *** |
|---|---|---|---|
| 敷金/礼金 | *** / *** | 専有面積 | 25.50m² |
| 間取り | 1K | 階建 | ***/8階建 |
グランヴァン亀戸III【満室】の詳細
| 賃料 | *** | 管理費・共益費 | *** |
|---|---|---|---|
| 敷金/保証金 | *** / *** | 礼金/償却・敷引 | *** / *** |
| 更新料 | *** | フリーレント | *** |
| その他費用 | *** | ||
| 所在地 | 東京都江東区亀戸5丁目 | ||
| 交通 |
総武・中央緩行線「亀戸」 徒歩4分 東武鉄道亀戸線「亀戸水神」 徒歩6分 東武鉄道亀戸線「東あずま」 徒歩15分 |
||
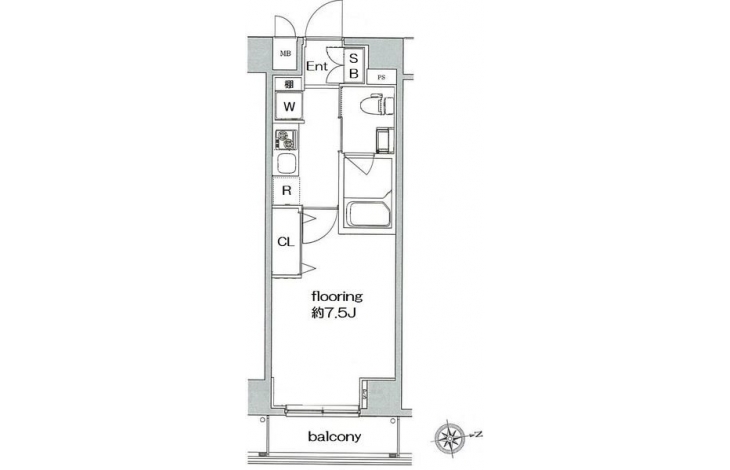
| 間取り | 1K | 間取り内訳 |
K 2 畳 洋室 7.5 畳 |
| 専有面積 | 25.50m² | バルコニー面積 | |
| 築年月(築年数) | 2014年05月(築11年) | 方位 | 東 |
| 建物構造 | RC(鉄筋コンクリート) | 所在階/階建 | ***/8階建 |
| 総戸数 | 42戸 | 駐車場 | |
| 保険料 | *** | 契約期間 | *** |
| 引渡 | 2021年12月 | ||
| 現況(予定年月) | 居住中 | ||
| 管理 | |||
| 設備・条件 | BSアンテナ、CSアンテナ、CATV、オートロック、防犯カメラ、ディンプルキー、宅配ボックス、エレベータ、デザイナーズ、システムキッチン、バス・トイレ別、温水洗浄便座、浴室乾燥機、エアコン、分譲賃貸 | ||
| 備考 | 保証人代行:必須/賃料総額50%~ | ||
| 周辺施設 |
ファミリーマート 薬ヒグチ亀戸東口店(距離:310m) まいばすけっと 江東亀戸5丁目店(距離:164m) セブンイレブン 亀戸駅東口店(距離:325m) まいばすけっと 亀戸駅東口店(距離:288m) ヒグチ薬品亀戸東口店(距離:312m) |
||
| 物件番号 | 19369 | 取引態様 | 代理 |
| 情報更新日 | *** | ||
| 次回更新予定日 | 情報更新日より15日以内 | ||




















COMMENTS FROM STAFFグランヴァン亀戸III【満室】の
担当者コメント
東京の1人暮らしはアセットナビへ!自社ブランドマンションをはじめ、賃貸物件を数多くご紹介可能です。こちらの物件は、分譲賃貸マンションで設備が充実しております。オートロックシステムでセキュリティもバッチリです。