メインステージ押上IV【満室】 *** | 2DK | ***
本情報は過去に掲載された物件の参考情報です。 最新の物件情報など詳細につきましてはお気軽にお問合せください。
| 賃料 | *** | 管理費・共益費 | *** |
|---|---|---|---|
| 敷金/礼金 | *** / *** | 専有面積 | 47.07m² |
| 間取り | 2DK | 階建 | ***/7階建 |
メインステージ押上IV【満室】の詳細
| 賃料 | *** | 管理費・共益費 | *** |
|---|---|---|---|
| 敷金/保証金 | *** / *** | 礼金/償却・敷引 | *** / *** |
| 更新料 | *** | フリーレント | *** |
| その他費用 | *** | ||
| 所在地 | 東京都墨田区業平5丁目 | ||
| 交通 |
東京地下鉄半蔵門線「押上」 徒歩3分 東武伊勢崎・大師線「東京スカイツリー」 徒歩16分 東武伊勢崎・大師線「曳舟」 徒歩18分 |
||
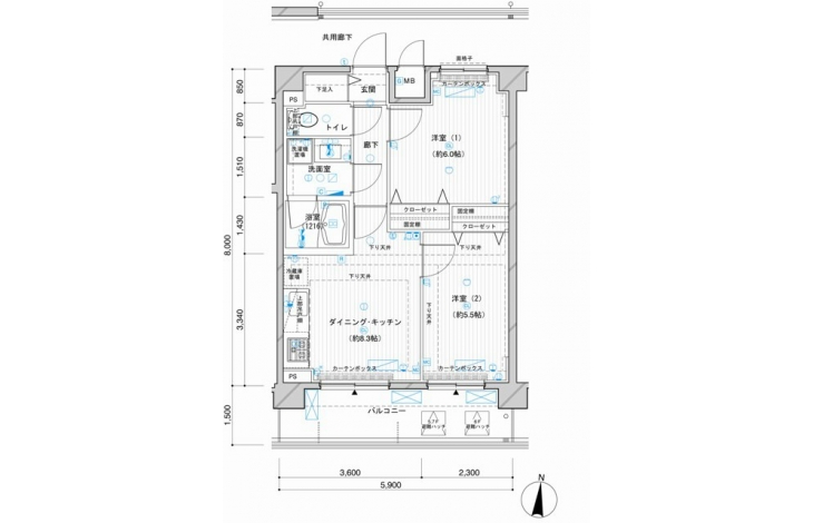
| 間取り | 2DK | 間取り内訳 |
DK 8.3 畳 洋室 6 畳 洋室 5.5 畳 |
| 専有面積 | 47.07m² | バルコニー面積 | |
| 築年月(築年数) | 2011年04月(築14年) | 方位 | 南 |
| 建物構造 | RC(鉄筋コンクリート) | 所在階/階建 | ***/7階建 |
| 総戸数 | 駐車場 | ||
| 保険料 | *** | 契約期間 | *** |
| 引渡 | 2024年10月 | ||
| 現況(予定年月) | 居住中 | ||
| 管理 | |||
| 設備・条件 | BSアンテナ、CSアンテナ、光ファイバー、オートロック、TVドアホン、防犯カメラ、ディンプルキー、宅配ボックス、駐輪場、エレベータ、デザイナーズ、2階以上、最上階、システムキッチン、バス・トイレ別、温水洗浄便座、浴室乾燥機、室内洗濯機置き場、フローリング、24時間換気システム、バルコニー、分譲賃貸、敷金なし、ペット相談 | ||
| 備考 | 保証人代行:必須/賃料総額の50%~ | ||
| 周辺施設 |
セブンイレブン 墨田業平5丁目店(距離:91m) ファミリーマート 業平三丁目店(距離:295m) 東武ストア 業平店(距離:179m) ビッグ・エー 墨田業平店(距離:85m) クリエイト薬局 墨田業平店(距離:60m) |
||
| 物件番号 | 54005 | 取引態様 | 仲介 |
| 情報更新日 | *** | ||
| 次回更新予定日 | 情報更新日より15日以内 | ||



















COMMENTS FROM STAFFメインステージ押上IV【満室】の
担当者コメント
東京の1人暮らしはアセットナビへ!自社ブランドマンションをはじめ、賃貸物件を数多くご紹介可能です。こちらの物件は、分譲賃貸マンションで設備が充実しております。オートロックシステムでセキュリティもバッチリです。