メインステージ多摩川II【満室】 *** | 1K | ***
本情報は過去に掲載された物件の参考情報です。 最新の物件情報など詳細につきましてはお気軽にお問合せください。
| 賃料 | *** | 管理費・共益費 | *** |
|---|---|---|---|
| 敷金/礼金 | *** / *** | 専有面積 | 22.10m² |
| 間取り | 1K | 階建 | ***/5階建 |
メインステージ多摩川II【満室】の詳細
| 賃料 | *** | 管理費・共益費 | *** |
|---|---|---|---|
| 敷金/保証金 | *** / *** | 礼金/償却・敷引 | *** / *** |
| 更新料 | *** | フリーレント | *** |
| その他費用 | *** | ||
| 所在地 | 東京都大田区多摩川2丁目 | ||
| 交通 |
東急多摩川線「矢口渡」 徒歩6分 東急池上線「蓮沼」 徒歩17分 東急多摩川線「武蔵新田」 徒歩18分 |
||
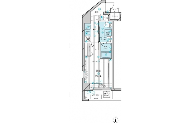
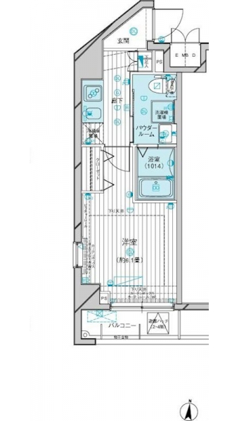
| 間取り | 1K | 間取り内訳 |
洋室 6.1 畳 |
| 専有面積 | 22.10m² | バルコニー面積 | |
| 築年月(築年数) | 2007年06月(築18年) | 方位 | 南 |
| 建物構造 | RC(鉄筋コンクリート) | 所在階/階建 | ***/5階建 |
| 総戸数 | 41戸 | 駐車場 | |
| 保険料 | *** | 契約期間 | *** |
| 引渡 | 即時 | ||
| 現況(予定年月) | 空室 | ||
| 管理 | |||
| 設備・条件 | BSアンテナ、CATV、オートロック、防犯カメラ、宅配ボックス、駐輪場、エレベータ、2階以上、角部屋、システムキッチン、バス・トイレ別、温水洗浄便座、浴室乾燥機、室内洗濯機置き場、フローリング、エアコン、バルコニー、分譲賃貸 | ||
| 備考 | 保証人代行:必須/オリコフォレントインシュア、他、家賃総額の50%~ | ||
| 周辺施設 |
西友 矢口ノ渡店(距離:225m) まいばすけっと 矢口渡店(距離:503m) セブンイレブン 大田区多摩川1丁目店(距離:269m) ファミリーマート かわだ多摩川二丁目店(距離:269m) ケイポートドラッグマート矢口店(距離:216m) |
||
| 物件番号 | 34237 | 取引態様 | 仲介 |
| 情報更新日 | *** | ||
| 次回更新予定日 | 情報更新日より15日以内 | ||



















COMMENTS FROM STAFFメインステージ多摩川II【満室】の
担当者コメント
東京の1人暮らしはアセットナビへ!自社ブランドマンションをはじめ、賃貸物件を数多くご紹介可能です。こちらの物件は、分譲賃貸マンションで設備が充実しております。オートロックシステムでセキュリティもバッチリです。