メインステージ門前仲町II【満室】 *** | 1K | ***
本情報は過去に掲載された物件の参考情報です。 最新の物件情報など詳細につきましてはお気軽にお問合せください。
| 賃料 | *** | 管理費・共益費 | *** |
|---|---|---|---|
| 敷金/礼金 | *** / *** | 専有面積 | 25.62m² |
| 間取り | 1K | 階建 | ***/14階建 |
メインステージ門前仲町II【満室】の詳細
| 賃料 | *** | 管理費・共益費 | *** |
|---|---|---|---|
| 敷金/保証金 | *** / *** | 礼金/償却・敷引 | *** / *** |
| 更新料 | *** | フリーレント | *** |
| その他費用 | *** | ||
| 所在地 | 東京都江東区深川2丁目 | ||
| 交通 |
東京地下鉄東西線「門前仲町」 徒歩2分 都営大江戸線「清澄白河」 徒歩13分 京葉線「越中島」 徒歩13分 |
||
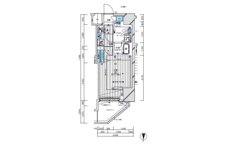
| 間取り | 1K | 間取り内訳 |
K 2 畳 洋室 8.3 畳 |
| 専有面積 | 25.62m² | バルコニー面積 | |
| 築年月(築年数) | 2020年07月(築5年) | 方位 | 北 |
| 建物構造 | RC(鉄筋コンクリート) | 所在階/階建 | ***/14階建 |
| 総戸数 | 64戸 | 駐車場 | 無 |
| 保険料 | *** | 契約期間 | *** |
| 引渡 | 2023年05月 | ||
| 現況(予定年月) | 居住中 | ||
| 管理 | 管理人/巡回、 | ||
| 設備・条件 | BSアンテナ、CSアンテナ、光ファイバー、オートロック、TVドアホン、防犯カメラ、ディンプルキー、宅配ボックス、バイク置き場、駐輪場、エレベータ、デザイナーズ、角部屋、システムキッチン、バス・トイレ別、温水洗浄便座、浴室乾燥機、室内洗濯機置き場、フローリング、エアコン、バルコニー、分譲賃貸 | ||
| 備考 | 保証人代行:必須/賃料総額の50%~ | ||
| 周辺施設 |
アブアブ赤札堂深川店(距離:243m) まいばすけっと富岡八幡店(距離:823m) まいばすけっと江東富岡1丁目店(距離:939m) セブンイレブン江東門前仲町店(距離:288m) セブンイレブン江東永代2丁目店(距離:642m) ローソン永代橋店(距離:618m) |
||
| 物件番号 | 35703 | 取引態様 | 仲介 |
| 情報更新日 | *** | ||
| 次回更新予定日 | 情報更新日より15日以内 | ||



















COMMENTS FROM STAFFメインステージ門前仲町II【満室】の
担当者コメント
東京の1人暮らしはアセットナビへ!自社ブランドマンションをはじめ、賃貸物件を数多くご紹介可能です。こちらの物件は、分譲賃貸マンションで設備が充実しております。オートロックシステムでセキュリティもバッチリです。