メインステージ市ヶ谷曙橋【満室】 *** | 1K | ***
本情報は過去に掲載された物件の参考情報です。 最新の物件情報など詳細につきましてはお気軽にお問合せください。
| 賃料 | *** | 管理費・共益費 | *** |
|---|---|---|---|
| 敷金/礼金 | *** / *** | 専有面積 | 19.36m² |
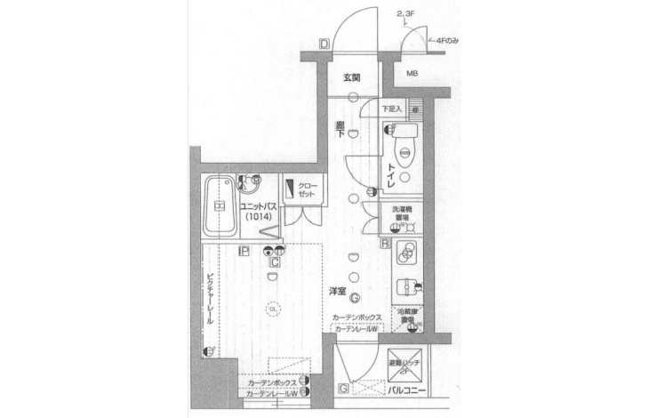
| 間取り | 1K | 階建 | ***/12階建 |
メインステージ市ヶ谷曙橋【満室】の詳細
| 賃料 | *** | 管理費・共益費 | *** |
|---|---|---|---|
| 敷金/保証金 | *** / *** | 礼金/償却・敷引 | *** / *** |
| 更新料 | *** | フリーレント | *** |
| その他費用 | *** | ||
| 所在地 | 東京都新宿区市谷仲之町 | ||
| 交通 |
都営新宿線「曙橋」 徒歩4分 都営大江戸線「牛込柳町」 徒歩6分 東京地下鉄丸ノ内線「四谷三丁目」 徒歩14分 |
||
| 間取り | 1K | 間取り内訳 | |
| 専有面積 | 19.36m² | バルコニー面積 | 2.04m² |
| 築年月(築年数) | 2004年02月(築21年) | 方位 | 北西 |
| 建物構造 | SRC(鉄骨鉄筋コンクリート) | 所在階/階建 | ***/12階建 |
| 総戸数 | 39戸 | 駐車場 | |
| 保険料 | *** | 契約期間 | *** |
| 引渡 | 即時 | ||
| 現況(予定年月) | 空室 | ||
| 管理 | 管理人/巡回、管理会社/株式会社青山メイン企画(03-5281-4811) | ||
| 設備・条件 | BSアンテナ、CATV、オートロック、TVドアホン、ディンプルキー、宅配ボックス、バイク置き場、駐輪場、エレベータ、2階以上、角部屋、システムキッチン、バス・トイレ別、浴室乾燥機、室内洗濯機置き場、洗濯機置き場有、フローリング、24時間換気システム、エアコン、バルコニー、分譲賃貸 | ||
| 備考 | 保証人代行:必須/総賃料の50%~ | ||
| 周辺施設 |
セブンイレブン新宿余丁町店(距離:863m) ミニストップ 新宿左門町店(距離:1,168m) |
||
| 物件番号 | 16397 | 取引態様 | 代理 |
| 情報更新日 | *** | ||
| 次回更新予定日 | 情報更新日より15日以内 | ||



















COMMENTS FROM STAFFメインステージ市ヶ谷曙橋【満室】の
担当者コメント
☆都営新宿線「曙橋」駅徒歩4分!駅近物件☆ネット使用料込