ルーブル千歳船橋【満室】 *** | 1K | ***
本情報は過去に掲載された物件の参考情報です。 最新の物件情報など詳細につきましてはお気軽にお問合せください。
| 賃料 | *** | 管理費・共益費 | *** |
|---|---|---|---|
| 敷金/礼金 | *** / *** | 専有面積 | 18.72m² |
| 間取り | 1K | 階建 | ***/8階建 |
ルーブル千歳船橋【満室】の詳細
| 賃料 | *** | 管理費・共益費 | *** |
|---|---|---|---|
| 敷金/保証金 | *** / *** | 礼金/償却・敷引 | *** / *** |
| 更新料 | *** | フリーレント | *** |
| その他費用 | *** | ||
| 所在地 | 東京都世田谷区千歳台3丁目 | ||
| 交通 |
小田急電鉄小田原線「千歳船橋」 徒歩9分 小田急電鉄小田原線「祖師ヶ谷大蔵」 徒歩16分 京王電鉄京王線「八幡山」 徒歩29分 |
||
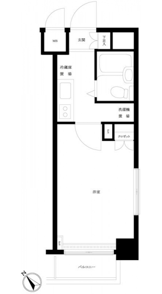
| 間取り | 1K | 間取り内訳 |
洋室 6 畳 6 階 K 1.5 畳 6 階 |
| 専有面積 | 18.72m² | バルコニー面積 | |
| 築年月(築年数) | 1999年04月(築26年) | 方位 | 南西 |
| 建物構造 | SRC(鉄骨鉄筋コンクリート) | 所在階/階建 | ***/8階建 |
| 総戸数 | 57戸 | 駐車場 | |
| 保険料 | *** | 契約期間 | *** |
| 引渡 | 2025年05月 | ||
| 現況(予定年月) | 空室 | ||
| 管理 | 管理人/巡回、管理会社/(株)TFDコミュニティ | ||
| 設備・条件 | BSアンテナ、CSアンテナ、オートロック、防犯カメラ、宅配ボックス、駐輪場、エレベータ、2階以上、角部屋、システムキッチン、室内洗濯機置き場、フローリング、エアコン、バルコニー、分譲賃貸、敷金なし | ||
| 備考 | 保証人代行:必須/初回保証料30%(家賃+管理費)※学生初回保証料9,000円 ※外国籍の方は50%+¥2000 | ||
| 周辺施設 |
セブンイレブン 世田谷千歳台2丁目店(距離:197m) ファミリーマート 世田谷廻沢店(距離:486m) まいばすけっと 千歳船橋駅西店(距離:732m) ウエルシア世田谷千歳台二丁目店(距離:925m) サミットストア 祖師谷店(距離:926m) |
||
| 物件番号 | 59338 | 取引態様 | 仲介 |
| 情報更新日 | *** | ||
| 次回更新予定日 | 情報更新日より15日以内 | ||




















COMMENTS FROM STAFFルーブル千歳船橋【満室】の
担当者コメント
東京の1人暮らしはアセットナビへ!自社ブランドマンションをはじめ、賃貸物件を数多くご紹介可能です。