メインステージ松戸【満室】 *** | 1K | ***
本情報は過去に掲載された物件の参考情報です。 最新の物件情報など詳細につきましてはお気軽にお問合せください。
| 賃料 | *** | 管理費・共益費 | *** |
|---|---|---|---|
| 敷金/礼金 | *** / *** | 専有面積 | 21.11m² |
| 間取り | 1K | 階建 | ***/10階建 |
メインステージ松戸【満室】の詳細
| 賃料 | *** | 管理費・共益費 | *** |
|---|---|---|---|
| 敷金/保証金 | *** / *** | 礼金/償却・敷引 | *** / *** |
| 更新料 | *** | フリーレント | *** |
| その他費用 | *** | ||
| 所在地 | 千葉県松戸市小根本 | ||
| 交通 |
常磐線「松戸」 徒歩7分 新京成電鉄「松戸」 徒歩7分 千代田・常磐緩行線「北松戸」 徒歩22分 |
||
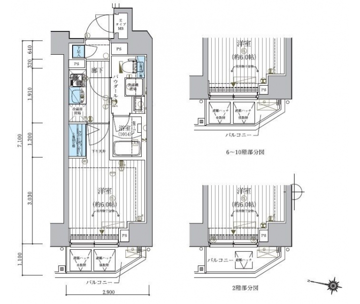
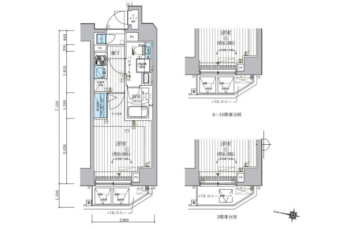
| 間取り | 1K | 間取り内訳 |
洋室 6 畳 K 2 畳 |
| 専有面積 | 21.11m² | バルコニー面積 | |
| 築年月(築年数) | 2016年03月(築9年) | 方位 | 南西 |
| 建物構造 | RC(鉄筋コンクリート) | 所在階/階建 | ***/10階建 |
| 総戸数 | 駐車場 | ||
| 保険料 | *** | 契約期間 | *** |
| 引渡 | 2023年04月 | ||
| 現況(予定年月) | 居住中 | ||
| 管理 | 管理人/巡回、 | ||
| 設備・条件 | BSアンテナ、CSアンテナ、オートロック、防犯カメラ、ダブルロックキー、宅配ボックス、エレベータ、デザイナーズ、2階以上、システムキッチン、バス・トイレ別、温水洗浄便座、浴室乾燥機、室内洗濯機置き場、フローリング、24時間換気システム、エアコン、分譲賃貸 | ||
| 備考 | 保証人代行:必須/賃料総額の50%~ | ||
| 周辺施設 |
ローソン 松戸市役所前店(距離:75m) ニューヤマザキデイリーストア松戸市役所店(距離:120m) イトーヨーカドー 松戸店(距離:477m) ザ・ダイソー ダイエー松戸西口店(距離:598m) マツモトキヨシ プラーレ松戸店(距離:477m) |
||
| 物件番号 | 35702 | 取引態様 | 仲介 |
| 情報更新日 | *** | ||
| 次回更新予定日 | 情報更新日より15日以内 | ||













COMMENTS FROM STAFFメインステージ松戸【満室】の
担当者コメント
東京の1人暮らしはアセットナビへ!自社ブランドマンションをはじめ、賃貸物件を数多くご紹介可能です。こちらの物件は、分譲賃貸マンションで設備が充実しております。オートロックシステムでセキュリティもバッチリです。