メインステージ松戸 9階 | 1K | 7.4万円
| 賃料 | 7.4万円 | 管理費・共益費 | 1.5万円 |
|---|---|---|---|
| 敷金/礼金 | なし / なし | 専有面積 | 21.11m² |
| 間取り | 1K | 階建 | 9階/10階建 |
メインステージ松戸の詳細
| 賃料 | 7.4万円 | 管理費・共益費 | 1.5万円 |
|---|---|---|---|
| 敷金/保証金 | なし / | 礼金/償却・敷引 | なし / |
| 更新料 | 1.5ヶ月 | フリーレント | なし |
| その他費用 |
クラブサポート:16,500円 退去時クリーニング費用:49,500円 鍵交換費用:29,700円 退去時エアコン清掃費用:16,500円 |
||
| 所在地 | 千葉県松戸市小根本 | ||
| 交通 |
常磐線「松戸」 徒歩7分 新京成電鉄「松戸」 徒歩7分 千代田・常磐緩行線「北松戸」 徒歩22分 |
||
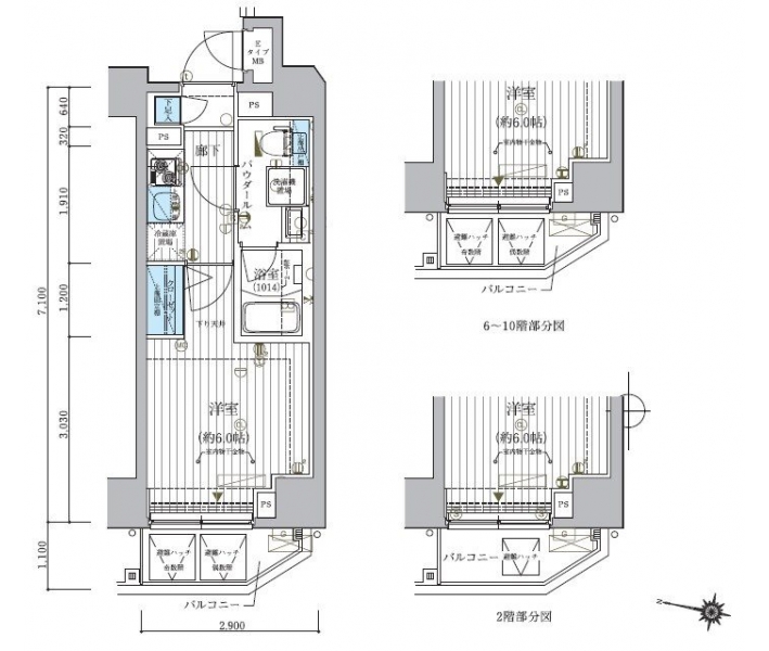
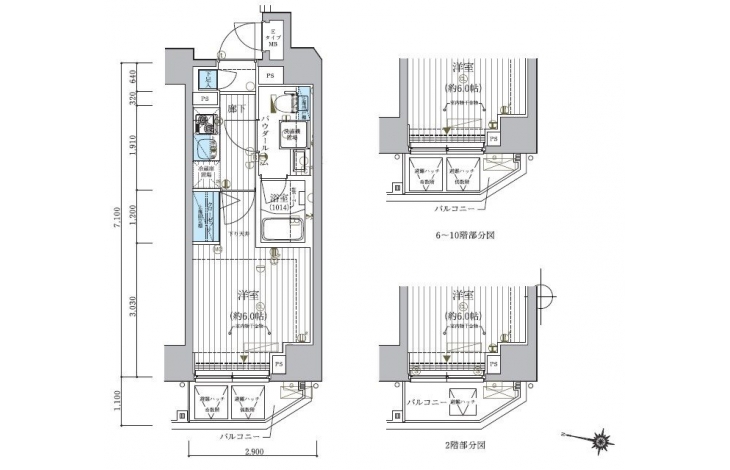
| 間取り | 1K | 間取り内訳 |
洋室 6 畳 9 階 K 2 畳 9 階 |
| 専有面積 | 21.11m² | バルコニー面積 | |
| 築年月(築年数) | 2016年03月(築9年) | 方位 | 西 |
| 建物構造 | RC(鉄筋コンクリート) | 所在階/階建 | 9階/10階建 |
| 総戸数 | 73戸 | 駐車場 | |
| 保険料 | 要 16,000円 2年 | 契約期間 | 2年間 |
| 引渡 | 2026年02月 | ||
| 現況(予定年月) | 居住中 | ||
| 管理 | 管理人/巡回、 | ||
| 設備・条件 | BSアンテナ、CSアンテナ、オートロック、防犯カメラ、ダブルロックキー、宅配ボックス、エレベータ、デザイナーズ、2階以上、システムキッチン、バス・トイレ別、温水洗浄便座、浴室乾燥機、室内洗濯機置き場、フローリング、24時間換気システム、エアコン、分譲賃貸、礼金なし、敷金なし、ペット相談 | ||
| 備考 | 保証人代行:必須/賃料総額の50%~ | ||
| 周辺施設 |
ローソン 松戸市役所前店(距離:75m) ニューヤマザキデイリーストア松戸市役所店(距離:120m) イトーヨーカドー 松戸店(距離:477m) ザ・ダイソー ダイエー松戸西口店(距離:598m) マツモトキヨシ プラーレ松戸店(距離:477m) |
||
| 物件番号 | 22505 | 取引態様 | 仲介 |
| 情報更新日 | 2025年12月25日 | ||
| 次回更新予定日 | 情報更新日より15日以内 | ||













COMMENTS FROM STAFFメインステージ松戸の
担当者コメント
東京の1人暮らしはアセットナビへ!自社ブランドマンションをはじめ、賃貸物件を数多くご紹介可能です。3,000円キャッシュバックキャンペーン実施中。オンライン接客のお客様にAmazonギフト券3,000円分をプレゼント。詳しくはスタッフまでお問い合わせください。