メインステージ日本橋馬喰町駅前【満室】 *** | 1K | ***
本情報は過去に掲載された物件の参考情報です。 最新の物件情報など詳細につきましてはお気軽にお問合せください。
| 賃料 | *** | 管理費・共益費 | *** |
|---|---|---|---|
| 敷金/礼金 | *** / *** | 専有面積 | 22.23m² |
| 間取り | 1K | 階建 | ***/12階建 |
メインステージ日本橋馬喰町駅前【満室】の詳細
| 賃料 | *** | 管理費・共益費 | *** |
|---|---|---|---|
| 敷金/保証金 | *** / *** | 礼金/償却・敷引 | *** / *** |
| 更新料 | *** | フリーレント | *** |
| その他費用 | *** | ||
| 所在地 | 東京都中央区日本橋馬喰町1丁目 | ||
| 交通 |
総武本線「馬喰町」 徒歩1分 都営新宿線「馬喰横山」 徒歩2分 都営浅草線「東日本橋」 徒歩5分 |
||
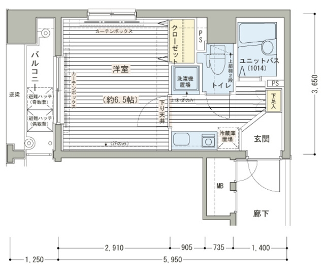
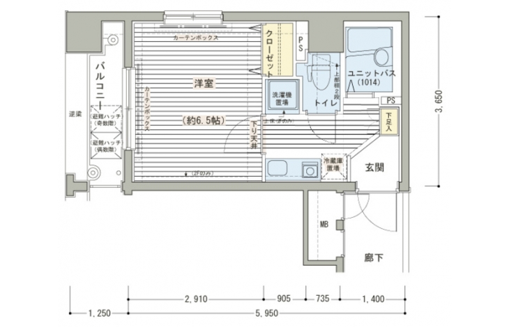
| 間取り | 1K | 間取り内訳 |
K 2 畳 洋室 6.5 畳 |
| 専有面積 | 22.23m² | バルコニー面積 | |
| 築年月(築年数) | 2004年02月(築22年) | 方位 | 南西 |
| 建物構造 | SRC(鉄骨鉄筋コンクリート) | 所在階/階建 | ***/12階建 |
| 総戸数 | 44戸 | 駐車場 | 無 |
| 保険料 | *** | 契約期間 | *** |
| 引渡 | 即時 | ||
| 現況(予定年月) | 空室 | ||
| 管理 | 管理人/日勤、 | ||
| 設備・条件 | BSアンテナ、CSアンテナ、CATV、光ファイバー、オートロック、TVドアホン、防犯カメラ、ディンプルキー、宅配ボックス、駐輪場、エレベータ、デザイナーズ、2階以上、角部屋、システムキッチン、バス・トイレ別、温水洗浄便座、浴室乾燥機、室内洗濯機置き場、フローリング、24時間換気システム、エアコン、バルコニー、分譲賃貸、日当たり良好 | ||
| 備考 | 保証人代行:必須/管理会社指定:詳細はお問い合わせください。 | ||
| 周辺施設 |
マルマンストア日本橋馬喰町店近隣(距離:116m) ミニストップ馬喰町駅前店近隣(距離:93m) まいばすけっと日本橋横山町店近隣(距離:277m) マルエツプチ東日本橋三丁目店近隣(距離:362m) ローソン日本橋横山町店近隣(距離:189m) デイリーヤマザキ馬喰横山駅前店近隣(距離:255m) |
||
| 物件番号 | 17444 | 取引態様 | 代理 |
| 情報更新日 | *** | ||
| 次回更新予定日 | 情報更新日より15日以内 | ||
















COMMENTS FROM STAFFメインステージ日本橋馬喰町駅前【満室】の
担当者コメント
東京の1人暮らしはアセットナビへ!自社ブランドマンションをはじめ、賃貸物件を数多くご紹介可能です。こちらの物件は、分譲賃貸マンションで設備が充実しております。オートロックシステムでセキュリティもバッチリです。