メインステージ八丁堀【満室】 *** | 1K | ***
本情報は過去に掲載された物件の参考情報です。 最新の物件情報など詳細につきましてはお気軽にお問合せください。
| 賃料 | *** | 管理費・共益費 | *** |
|---|---|---|---|
| 敷金/礼金 | *** / *** | 専有面積 | 24.45m² |
| 間取り | 1K | 階建 | ***/11階建 |
メインステージ八丁堀【満室】の詳細
| 賃料 | *** | 管理費・共益費 | *** |
|---|---|---|---|
| 敷金/保証金 | *** / *** | 礼金/償却・敷引 | *** / *** |
| 更新料 | *** | フリーレント | *** |
| その他費用 | *** | ||
| 所在地 | 東京都中央区入船1丁目 | ||
| 交通 |
東京地下鉄日比谷線「八丁堀(東京)」 徒歩2分 都営浅草線「宝町(東京)」 徒歩8分 東京地下鉄有楽町線「新富町(東京)」 徒歩8分 |
||
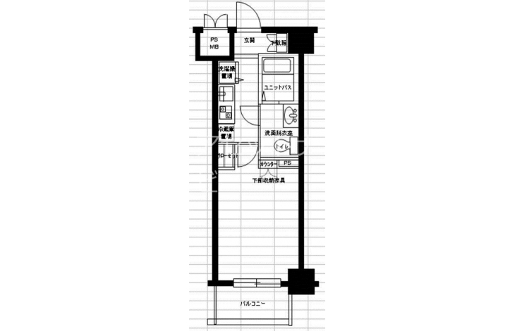
| 間取り | 1K | 間取り内訳 |
K 2 畳 洋室 7.3 畳 |
| 専有面積 | 24.45m² | バルコニー面積 | |
| 築年月(築年数) | 2003年11月(築22年) | 方位 | 南 |
| 建物構造 | RC(鉄筋コンクリート) | 所在階/階建 | ***/11階建 |
| 総戸数 | 39戸 | 駐車場 | 無 |
| 保険料 | *** | 契約期間 | *** |
| 引渡 | 即時 | ||
| 現況(予定年月) | 空室 | ||
| 管理 | 管理人/巡回、 | ||
| 設備・条件 | BSアンテナ、CSアンテナ、CATV、光ファイバー、オートロック、TVドアホン、防犯カメラ、ディンプルキー、宅配ボックス、駐輪場、エレベータ、システムキッチン、バス・トイレ別、温水洗浄便座、浴室乾燥機、室内洗濯機置き場、フローリング、エアコン、バルコニー、分譲賃貸、敷金なし | ||
| 備考 | 保証人代行:必須/賃料総額の50%~ | ||
| 周辺施設 |
miniピアゴ入船1丁目店(距離:161m) ファミリーマート入船一丁目店(距離:121m) 肉のハナマサ日本橋宝町店(距離:945m) ローソン入船一丁目店(距離:131m) マルエツプチ新川一丁目店(距離:874m) ローソン新川2丁目店(距離:656m) |
||
| 物件番号 | 48851 | 取引態様 | 仲介 |
| 情報更新日 | *** | ||
| 次回更新予定日 | 情報更新日より15日以内 | ||














COMMENTS FROM STAFFメインステージ八丁堀【満室】の
担当者コメント
東京の1人暮らしはアセットナビへ!自社ブランドマンションをはじめ、賃貸物件を数多くご紹介可能です。こちらの物件は、分譲賃貸マンションで設備が充実しております。オートロックシステムでセキュリティもバッチリです。