メインステージ多摩川III【満室】 *** | 1K | ***
本情報は過去に掲載された物件の参考情報です。 最新の物件情報など詳細につきましてはお気軽にお問合せください。
| 賃料 | *** | 管理費・共益費 | *** |
|---|---|---|---|
| 敷金/礼金 | *** / *** | 専有面積 | 20.88m² |
| 間取り | 1K | 階建 | ***/6階建 |
メインステージ多摩川III【満室】の詳細
| 賃料 | *** | 管理費・共益費 | *** |
|---|---|---|---|
| 敷金/保証金 | *** / *** | 礼金/償却・敷引 | *** / *** |
| 更新料 | *** | フリーレント | *** |
| その他費用 | *** | ||
| 所在地 | 東京都大田区矢口1丁目 | ||
| 交通 |
東急池上線「千鳥町」 徒歩11分 東急多摩川線「武蔵新田」 徒歩3分 東急多摩川線「下丸子」 徒歩9分 |
||
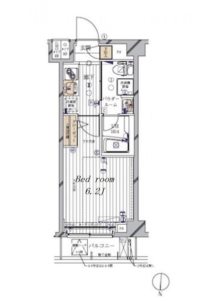
| 間取り | 1K | 間取り内訳 |
K 1.5 畳 洋室 6.2 畳 |
| 専有面積 | 20.88m² | バルコニー面積 | |
| 築年月(築年数) | 2013年03月(築12年) | 方位 | 北 |
| 建物構造 | RC(鉄筋コンクリート) | 所在階/階建 | ***/6階建 |
| 総戸数 | 130戸 | 駐車場 | |
| 保険料 | *** | 契約期間 | *** |
| 引渡 | 即時 | ||
| 現況(予定年月) | 空室 | ||
| 管理 | 管理人/巡回、 | ||
| 設備・条件 | BSアンテナ、CSアンテナ、光ファイバー、オートロック、防犯カメラ、ディンプルキー、ダブルロックキー、宅配ボックス、エレベータ、デザイナーズ、システムキッチン、バス・トイレ別、温水洗浄便座、浴室乾燥機、室内洗濯機置き場、洗濯機置き場有、フローリング、24時間換気システム、エアコン、バルコニー、分譲賃貸 | ||
| 備考 | 保証人代行:必須/家賃総額の50%~ | ||
| 周辺施設 |
まいばすけっと 武蔵新田駅前店(距離:234m) マルエツ 新田店(距離:231m) セブンイレブン 大田区下丸子1丁目店(距離:99m) ローソン 武蔵新田駅前店(距離:249m) くすりセイジョー 武蔵新田店(距離:276m) |
||
| 物件番号 | 25280 | 取引態様 | 仲介 |
| 情報更新日 | *** | ||
| 次回更新予定日 | 情報更新日より15日以内 | ||





















COMMENTS FROM STAFFメインステージ多摩川III【満室】の
担当者コメント
東京の1人暮らしはアセットナビへ!自社ブランドマンションをはじめ、賃貸物件を数多くご紹介可能です。こちらの物件は、分譲賃貸マンションで設備が充実しております。オートロックシステムでセキュリティもバッチリです。