本情報は過去に掲載された物件の参考情報です。 最新の物件情報など詳細につきましてはお気軽にお問合せください。
| 賃料 | *** | 管理費・共益費 | *** |
|---|---|---|---|
| 敷金/礼金 | *** / *** | 専有面積 | 21.00m² |
| 間取り | 1K | 階建 | ***/11階建 |
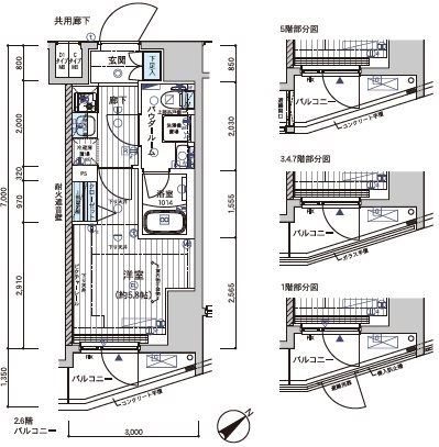
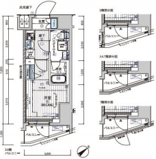
【間取り】間取図
【収納】
【キッチン】キッチン
【リビング】リビング
【風呂】バス
【トイレ】
【玄関】玄関
【洗面所】
【その他】
【その他設備】
【その他部屋・スペース】
【その他】
【その他】
【その他】
【その他】
【外観】外観・土地
【ロビー】ロビー
【駐車場】駐車場
【その他共有部分】敷地内/建物
【エントランス】
【[その他]】まいばすけっと西五反田6丁目店 距離:50m
【[その他]】ファミリーマート西五反田六丁目店 距離:304m
【[その他]】ライフ大崎百反通店 距離:494m
【[その他]】マルエツプチ不動前店 距離:867m
【[その他]】ナチュラルローソン西五反田八丁目店 距離:791m
【[その他]】ローソン西五反田店 距離:803m
GoogleMapを読み込んでいます。
35.620623 139.715294
メインステージ不動前II【満室】の詳細
| 賃料 | *** | 管理費・共益費 | *** |
|---|---|---|---|
| 敷金/保証金 | *** / *** | 礼金/償却・敷引 | *** / *** |
| 更新料 | *** | フリーレント | *** |
| その他費用 | *** | ||
| 所在地 | 東京都品川区荏原1丁目 | ||
| 交通 |
東急目黒線「不動前」 徒歩10分 都営浅草線「戸越」 徒歩10分 山手線「五反田」 徒歩18分 |
||
| 間取り | 1K | 間取り内訳 |
洋室 5.8 畳 |
| 専有面積 | 21.00m² | バルコニー面積 | |
| 築年月(築年数) | 2021年02月(築4年) | 方位 | 南東 |
| 建物構造 | RC(鉄筋コンクリート) | 所在階/階建 | ***/11階建 |
| 総戸数 | 50戸 | 駐車場 | 無 |
| 保険料 | *** | 契約期間 | *** |
| 引渡 | 2024年05月 | ||
| 現況(予定年月) | 賃貸中 | ||
| 管理 | 管理人/巡回、 | ||
| 設備・条件 | BSアンテナ、CSアンテナ、光ファイバー、オートロック、TVドアホン、防犯カメラ、ディンプルキー、ダブルロックキー、宅配ボックス、駐輪場、エレベータ、2階以上、システムキッチン、バス・トイレ別、温水洗浄便座、浴室乾燥機、室内洗濯機置き場、フローリング、24時間換気システム、エアコン、バルコニー、分譲賃貸、敷金なし、ペット相談 | ||
| 備考 | 保証人代行:必須/賃料総額の50%~ | ||
| 周辺施設 |
まいばすけっと 西五反田6丁目店(距離:26m) ローソンLTF 荏原一丁目店(距離:172m) ライフ 大崎百反通店(距離:480m) セブンイレブン 品川荏原店(距離:368m) 五反田TOC(ティオーシー)(距離:541m) ココカラファイン 戸越銀座駅前店(距離:763m) |
||
| 物件番号 | 47309 | 取引態様 | 仲介 |
| 情報更新日 | *** | ||
| 次回更新予定日 | 情報更新日より15日以内 | ||




















COMMENTS FROM STAFFメインステージ不動前II【満室】の
担当者コメント
東京の1人暮らしはアセットナビへ!自社ブランドマンションをはじめ、賃貸物件を数多くご紹介可能です。こちらの物件は、分譲賃貸マンションで設備が充実しております。オートロックシステムでセキュリティもバッチリです。