本情報は過去に掲載された物件の参考情報です。 最新の物件情報など詳細につきましてはお気軽にお問合せください。
| 賃料 | *** | 管理費・共益費 | *** |
|---|---|---|---|
| 敷金/礼金 | *** / *** | 専有面積 | 23.10m² |
| 間取り | 1K | 階建 | ***/14階建 |
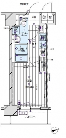
【間取り】
【キッチン】
【風呂】
【トイレ】
【リビング】
【洗面所】
【収納】
【ベッドルーム】
【キッチン】
【外観】外観・土地
【エントランス】エントランス
【ロビー】ロビー
【その他共有部分】共用設備
【セキュリティ】セキュリティ
【その他共有部分】その他
【その他共有部分】敷地内/建物
【[その他]】まいばすけっと京急蒲田駅前店 距離:554m
【[その他]】セブンイレブン京急蒲田駅前店 距離:648m
【[その他]】ライフ西蒲田店 距離:1,624m
【[その他]】マルエツ梅屋敷店 距離:1,867m
【[その他]】オーケー仲六郷店 距離:1,695m
【[その他]】ヨークマート東矢口店 距離:1,784m
GoogleMapを読み込んでいます。
35.557197 139.724530
メインステージ蒲田V【満室】の詳細
| 賃料 | *** | 管理費・共益費 | *** |
|---|---|---|---|
| 敷金/保証金 | *** / *** | 礼金/償却・敷引 | *** / *** |
| 更新料 | *** | フリーレント | *** |
| その他費用 | *** | ||
| 所在地 | 東京都大田区南蒲田2丁目 | ||
| 交通 |
京浜急行電鉄本線「京急蒲田」 徒歩6分 京浜東北・根岸線「蒲田」 徒歩14分 京浜急行電鉄空港線「糀谷」 徒歩10分 |
||
| 間取り | 1K | 間取り内訳 |
洋室 6.8 畳 |
| 専有面積 | 23.10m² | バルコニー面積 | |
| 築年月(築年数) | 2009年09月(築16年) | 方位 | 東 |
| 建物構造 | RC(鉄筋コンクリート) | 所在階/階建 | ***/14階建 |
| 総戸数 | 92戸 | 駐車場 | |
| 保険料 | *** | 契約期間 | *** |
| 引渡 | 即時 | ||
| 現況(予定年月) | 空室 | ||
| 管理 | |||
| 設備・条件 | BSアンテナ、CSアンテナ、光ファイバー、オートロック、TVドアホン、防犯カメラ、宅配ボックス、エレベータ、デザイナーズ、2階以上、システムキッチン、バス・トイレ別、温水洗浄便座、浴室乾燥機、室内洗濯機置き場、フローリング、24時間換気システム、エアコン、バルコニー、分譲賃貸、礼金なし、敷金なし、ペット相談 | ||
| 備考 | 保証人代行:必須/家賃総額の50%~ | ||
| 周辺施設 |
まいばすけっと 南蒲田1丁目店(距離:308m) まいばすけっと 環八蒲田4丁目店(距離:345m) セブンイレブン 大田区南蒲田1丁目店(距離:56m) ローソン 南蒲田二丁目店(距離:226m) クリエイトSD(エス・ディー) ウィングキッチン京急蒲田店(距離:563m) |
||
| 物件番号 | 43142 | 取引態様 | 仲介 |
| 情報更新日 | *** | ||
| 次回更新予定日 | 情報更新日より15日以内 | ||





















COMMENTS FROM STAFFメインステージ蒲田V【満室】の
担当者コメント
東京の1人暮らしはアセットナビへ!自社ブランドマンションをはじめ、賃貸物件を数多くご紹介可能です。こちらの物件は、分譲賃貸マンションで設備が充実しております。敷金礼金0円で初期費用が抑えられます。オートロックシステムでセキュリティもバッチリです。快適な独立洗面台つき。2口ガスコンロ・システムキッチン。室内洗濯機置場完備。