本情報は過去に掲載された物件の参考情報です。 最新の物件情報など詳細につきましてはお気軽にお問合せください。
| 賃料 | *** | 管理費・共益費 | *** |
|---|---|---|---|
| 敷金/礼金 | *** / *** | 専有面積 | 26.17m² |
| 間取り | 1K | 階建 | ***/14階建 |
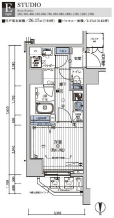
【間取り】間取図
【リビング】別タイプのお部屋です
【キッチン】別タイプのお部屋です
【トイレ】別タイプのお部屋です
【風呂】別タイプのお部屋です
【洗面所】別タイプのお部屋です
【玄関】別タイプのお部屋です
【バルコニー・ベランダ】別タイプのお部屋です
【収納】別タイプのお部屋です
【その他】別タイプのお部屋です
【収納】別タイプのお部屋です
【その他】敷地内/建物
【外観】外観・土地
【エントランス】エントランス
【外観】外観・土地
【[その他]】まいばすけっと錦糸町駅西店 距離:979m
【[その他]】ファミリーマート江東橋二丁目店 距離:618m
【[その他]】GAPストア丸井錦糸町店 距離:532m
【[その他]】タカキュー丸井錦糸町店 距離:539m
【[その他]】ローソン住吉一丁目店 距離:1,015m
【[その他]】ファミリーマート亀戸駅南店 距離:932m
GoogleMapを読み込んでいます。
35.694351 139.817070
メインステージ錦糸町VIIラピス【満室】の詳細
| 賃料 | *** | 管理費・共益費 | *** |
|---|---|---|---|
| 敷金/保証金 | *** / *** | 礼金/償却・敷引 | *** / *** |
| 更新料 | *** | フリーレント | *** |
| その他費用 | *** | ||
| 所在地 | 東京都墨田区江東橋4丁目 | ||
| 交通 |
東京地下鉄半蔵門線「錦糸町」 徒歩5分 総武・中央緩行線「錦糸町」 徒歩7分 東京地下鉄半蔵門線「住吉(東京)」 徒歩12分 |
||
| 間取り | 1K | 間取り内訳 |
K 2 畳 洋室 6.2 畳 |
| 専有面積 | 26.17m² | バルコニー面積 | |
| 築年月(築年数) | 2015年03月(築10年) | 方位 | 北 |
| 建物構造 | RC(鉄筋コンクリート) | 所在階/階建 | ***/14階建 |
| 総戸数 | 77戸 | 駐車場 | 無 |
| 保険料 | *** | 契約期間 | *** |
| 引渡 | 即時 | ||
| 現況(予定年月) | 空室 | ||
| 管理 | |||
| 設備・条件 | オートロック、TVドアホン、防犯カメラ、宅配ボックス、駐輪場、エレベータ、デザイナーズ、角部屋、システムキッチン、バス・トイレ別、浴室乾燥機、室内洗濯機置き場、フローリング、エアコン、バルコニー、分譲賃貸、敷金なし | ||
| 備考 | 保証人代行:必須/賃料総額の100%~ | ||
| 周辺施設 |
スギ薬局調剤 江東橋店(距離:135m) ローソン H墨田江東橋四丁目店(距離:182m) ファミリーマート 江東橋四丁目店(距離:239m) 西友 錦糸町店(距離:308m) まいばすけっと 住吉駅北店(距離:412m) |
||
| 物件番号 | 61035 | 取引態様 | 仲介 |
| 情報更新日 | *** | ||
| 次回更新予定日 | 情報更新日より15日以内 | ||





















COMMENTS FROM STAFFメインステージ錦糸町VIIラピス【満室】の
担当者コメント
東京の1人暮らしはアセットナビへ!自社ブランドマンションをはじめ、賃貸物件を数多くご紹介可能です。こちらの物件は、分譲賃貸マンションで設備が充実しております。オートロックシステムでセキュリティもバッチリです。