本情報は過去に掲載された物件の参考情報です。 最新の物件情報など詳細につきましてはお気軽にお問合せください。
| 賃料 | *** | 管理費・共益費 | *** |
|---|---|---|---|
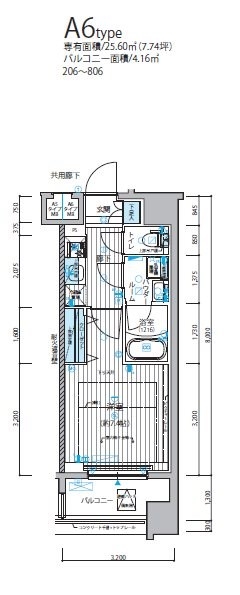
| 敷金/礼金 | *** / *** | 専有面積 | 25.60m² |
| 間取り | 1K | 階建 | ***/12階建 |
【間取り】間取図
【洗面所】洗面所
【キッチン】キッチン
【リビング】居室
【風呂】バス
【ベッドルーム】
【玄関】玄関
【バルコニー・ベランダ】バルコニー
【トイレ】トイレ
【収納】収納
【その他】内装
【その他】その他
【外観】外観・土地
【エントランス】エントランス
【エントランス】ロビー
【エントランス】ロビー
【外観】外観・土地
【[その他]】マルエツ両国亀沢店 距離:122m
【[その他]】まいばすけっと錦糸町駅西店 距離:521m
【[その他]】マルエツプチ両国緑一丁目店 距離:778m
【[その他]】ミニストップ緑2丁目店 距離:295m
【[その他]】ファミリーマート江東橋二丁目店 距離:835m
GoogleMapを読み込んでいます。
35.695717 139.805208
メインステージ錦糸町IX【満室】の詳細
| 賃料 | *** | 管理費・共益費 | *** |
|---|---|---|---|
| 敷金/保証金 | *** / *** | 礼金/償却・敷引 | *** / *** |
| 更新料 | *** | フリーレント | *** |
| その他費用 | *** | ||
| 所在地 | 東京都墨田区緑3丁目 | ||
| 交通 |
総武・中央緩行線「錦糸町」 徒歩12分 都営大江戸線「両国」 徒歩10分 都営新宿線「菊川(東京)」 徒歩12分 |
||
| 間取り | 1K | 間取り内訳 |
洋室 7.4 畳 |
| 専有面積 | 25.60m² | バルコニー面積 | |
| 築年月(築年数) | 2019年08月(築6年) | 方位 | 南 |
| 建物構造 | RC(鉄筋コンクリート) | 所在階/階建 | ***/12階建 |
| 総戸数 | 66戸 | 駐車場 | 無 |
| 保険料 | *** | 契約期間 | *** |
| 引渡 | 即時 | ||
| 現況(予定年月) | 空室 | ||
| 管理 | 管理人/巡回、 | ||
| 設備・条件 | BSアンテナ、CSアンテナ、光ファイバー、オートロック、TVドアホン、防犯カメラ、ディンプルキー、ダブルロックキー、宅配ボックス、駐輪場、エレベータ、デザイナーズ、2階以上、システムキッチン、バス・トイレ別、温水洗浄便座、浴室乾燥機、室内洗濯機置き場、フローリング、24時間換気システム、エアコン、バルコニー、分譲賃貸、礼金なし、敷金なし、ペット相談 | ||
| 備考 | 保証人代行:必須/賃料総額の50%~ | ||
| 周辺施設 |
マルエツ両国亀沢店(距離:122m) まいばすけっと錦糸町駅西店(距離:521m) マルエツプチ両国緑一丁目店(距離:778m) ミニストップ緑2丁目店(距離:295m) ファミリーマート江東橋二丁目店(距離:835m) |
||
| 物件番号 | 51666 | 取引態様 | 仲介 |
| 情報更新日 | *** | ||
| 次回更新予定日 | 情報更新日より15日以内 | ||



















COMMENTS FROM STAFFメインステージ錦糸町IX【満室】の
担当者コメント
東京の1人暮らしはアセットナビへ!自社ブランドマンションをはじめ、賃貸物件を数多くご紹介可能です。こちらの物件は、分譲賃貸マンションで設備が充実しております。オートロックシステムでセキュリティもバッチリです。