サンテミリオン芦花公園【満室】 *** | 1R | ***
本情報は過去に掲載された物件の参考情報です。 最新の物件情報など詳細につきましてはお気軽にお問合せください。
| 賃料 | *** | 管理費・共益費 | *** |
|---|---|---|---|
| 敷金/礼金 | *** / *** | 専有面積 | 33.94m² |
| 間取り | 1R | 階建 | ***/6階建 |
サンテミリオン芦花公園【満室】の詳細
| 賃料 | *** | 管理費・共益費 | *** |
|---|---|---|---|
| 敷金/保証金 | *** / *** | 礼金/償却・敷引 | *** / *** |
| 更新料 | *** | フリーレント | *** |
| その他費用 | *** | ||
| 所在地 | 東京都世田谷区南烏山1丁目 | ||
| 交通 |
京王電鉄京王線「八幡山」 徒歩6分 京王電鉄京王線「芦花公園」 徒歩7分 京王電鉄京王線「上北沢」 徒歩15分 |
||
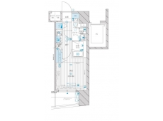
| 間取り | 1R | 間取り内訳 |
洋室 11.4 畳 |
| 専有面積 | 33.94m² | バルコニー面積 | |
| 築年月(築年数) | 1999年01月(築27年) | 方位 | 東 |
| 建物構造 | RC(鉄筋コンクリート) | 所在階/階建 | ***/6階建 |
| 総戸数 | 45戸 | 駐車場 | |
| 保険料 | *** | 契約期間 | *** |
| 引渡 | 2022年03月 | ||
| 現況(予定年月) | 賃貸中 | ||
| 管理 | 管理人/巡回、 | ||
| 設備・条件 | BSアンテナ、CATV、オートロック、宅配ボックス、駐輪場、エレベータ、角部屋、バス・トイレ別、室内洗濯機置き場、フローリング、24時間換気システム、エアコン、バルコニー、分譲賃貸、日当たり良好 | ||
| 備考 | 保証人代行:必須/初回保証料:総賃料の50%~ | ||
| 周辺施設 |
まいばすけっと 八幡山駅前店(距離:362m) 京王ストア 八幡山店(距離:453m) サミットストア 芦花公園駅前店(距離:472m) ローソン 高井戸陸橋店(距離:429m) オオゼキ 八幡山店(距離:518m) くすりセイジョー 芦花公園店(距離:524m) |
||
| 物件番号 | 22833 | 取引態様 | 代理 |
| 情報更新日 | *** | ||
| 次回更新予定日 | 情報更新日より15日以内 | ||


















COMMENTS FROM STAFFサンテミリオン芦花公園【満室】の
担当者コメント
東京の1人暮らしはアセットナビへ!自社ブランドマンションをはじめ、賃貸物件を数多くご紹介可能です。こちらの物件は、分譲賃貸マンションで設備が充実しております。オートロックシステムでセキュリティもバッチリです。