ルーブル学芸大学六番館【満室】 *** | 1K | ***
本情報は過去に掲載された物件の参考情報です。 最新の物件情報など詳細につきましてはお気軽にお問合せください。
| 賃料 | *** | 管理費・共益費 | *** |
|---|---|---|---|
| 敷金/礼金 | *** / *** | 専有面積 | 21.60m² |
| 間取り | 1K | 階建 | ***/8階建 |
ルーブル学芸大学六番館【満室】の詳細
| 賃料 | *** | 管理費・共益費 | *** |
|---|---|---|---|
| 敷金/保証金 | *** / *** | 礼金/償却・敷引 | *** / *** |
| 更新料 | *** | フリーレント | *** |
| その他費用 | *** | ||
| 所在地 | 東京都世田谷区下馬6丁目 | ||
| 交通 |
東急東横線「学芸大学」 徒歩9分 東急田園都市線「駒沢大学」 徒歩20分 東急田園都市線「三軒茶屋」 徒歩30分 |
||
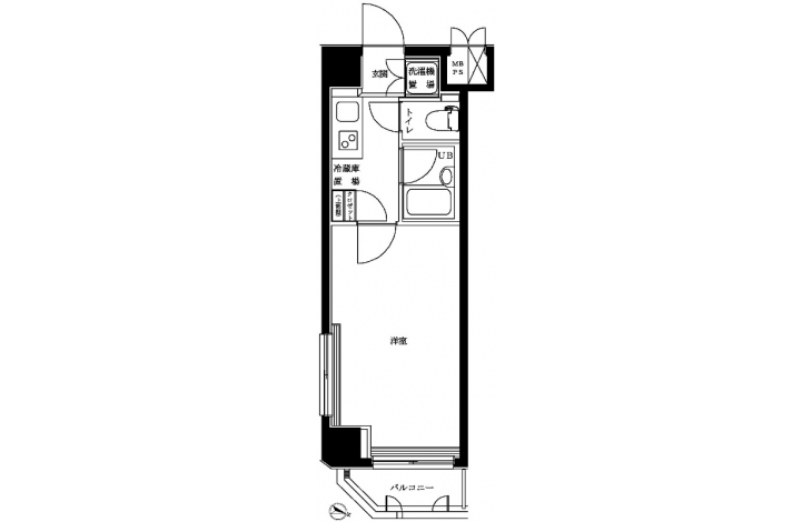
| 間取り | 1K | 間取り内訳 |
K 2 畳 3 階 洋室 6.5 畳 3 階 |
| 専有面積 | 21.60m² | バルコニー面積 | |
| 築年月(築年数) | 2004年11月(築21年) | 方位 | 東 |
| 建物構造 | RC(鉄筋コンクリート) | 所在階/階建 | ***/8階建 |
| 総戸数 | 60戸 | 駐車場 | 無 |
| 保険料 | *** | 契約期間 | *** |
| 引渡 | 即時 | ||
| 現況(予定年月) | 空室 | ||
| 管理 | 管理人/巡回、管理会社/(株)TFDコミュニティ | ||
| 設備・条件 | BSアンテナ、CSアンテナ、光ファイバー、オートロック、TVドアホン、防犯カメラ、ディンプルキー、宅配ボックス、駐輪場、エレベータ、2階以上、角部屋、システムキッチン、バス・トイレ別、温水洗浄便座、室内洗濯機置き場、フローリング、24時間換気システム、エアコン、バルコニー、分譲賃貸、敷金なし | ||
| 備考 | 保証人代行:必須/初回保証料30%(家賃+管理費)年間保証料10,000円 ※学生初回保証料9,000円 | ||
| 周辺施設 |
駒沢通り野沢 東急ストア(距離:156m) キャンドゥ 駒沢通り野沢店(距離:148m) ローソン 柿の木坂二丁目店(距離:137m) セブンイレブン 野沢店(距離:286m) ツルハドラッグ 柿の木坂店(距離:276m) |
||
| 物件番号 | 38401 | 取引態様 | 仲介 |
| 情報更新日 | *** | ||
| 次回更新予定日 | 情報更新日より15日以内 | ||



















COMMENTS FROM STAFFルーブル学芸大学六番館【満室】の
担当者コメント
東京の1人暮らしはアセットナビへ!自社ブランドマンションをはじめ、賃貸物件を数多くご紹介可能です。こちらの物件は、分譲賃貸マンションで設備が充実しております。オートロックシステムでセキュリティもバッチリです。