ルーブル駒沢大学参番館【満室】 *** | 1K | ***
本情報は過去に掲載された物件の参考情報です。 最新の物件情報など詳細につきましてはお気軽にお問合せください。
| 賃料 | *** | 管理費・共益費 | *** |
|---|---|---|---|
| 敷金/礼金 | *** / *** | 専有面積 | 26.26m² |
| 間取り | 1K | 階建 | ***/4階建 |
ルーブル駒沢大学参番館【満室】の詳細
| 賃料 | *** | 管理費・共益費 | *** |
|---|---|---|---|
| 敷金/保証金 | *** / *** | 礼金/償却・敷引 | *** / *** |
| 更新料 | *** | フリーレント | *** |
| その他費用 | *** | ||
| 所在地 | 東京都世田谷区野沢4丁目 | ||
| 交通 |
東急田園都市線「駒沢大学」 徒歩7分 東急田園都市線「三軒茶屋」 徒歩19分 東急世田谷線「若林(東京)」 徒歩21分 |
||
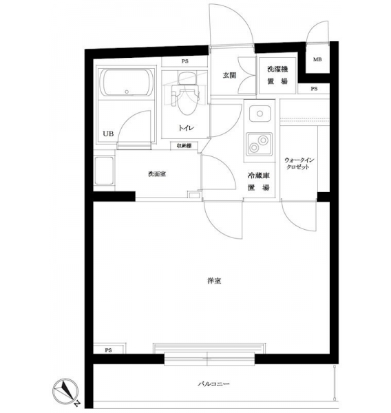
| 間取り | 1K | 間取り内訳 |
K 2 畳 洋室 8.3 畳 |
| 専有面積 | 26.26m² | バルコニー面積 | |
| 築年月(築年数) | 2010年02月(築15年) | 方位 | 北東 |
| 建物構造 | RC(鉄筋コンクリート) | 所在階/階建 | ***/4階建 |
| 総戸数 | 40戸 | 駐車場 | 無 |
| 保険料 | *** | 契約期間 | *** |
| 引渡 | 2021年11月 | ||
| 現況(予定年月) | 賃貸中 | ||
| 管理 | 管理人/巡回、 | ||
| 設備・条件 | BSアンテナ、CSアンテナ、光ファイバー、オートロック、防犯カメラ、ディンプルキー、宅配ボックス、駐輪場、エレベータ、デザイナーズ、システムキッチン、バス・トイレ別、温水洗浄便座、浴室乾燥機、室内洗濯機置き場、フローリング、24時間換気システム、エアコン、ウォークインクローゼット、バルコニー、分譲賃貸 | ||
| 備考 | 保証人代行:必須/エポス、クレディセゾン、GTN、家賃総額の30%~ | ||
| 周辺施設 |
まいばすけっと 野沢2丁目店(距離:276m) オオゼキ 野沢店(距離:242m) セブンイレブン 世田谷上馬4丁目店(距離:354m) ローソン 世田谷野沢二丁目店(距離:234m) トモズ 上馬店(距離:293m) |
||
| 物件番号 | 19585 | 取引態様 | 代理 |
| 情報更新日 | *** | ||
| 次回更新予定日 | 情報更新日より15日以内 | ||


















COMMENTS FROM STAFFルーブル駒沢大学参番館【満室】の
担当者コメント
東京の1人暮らしはアセットナビへ!自社ブランドマンションをはじめ、賃貸物件を数多くご紹介可能です。こちらの物件は、分譲賃貸マンションで設備が充実しております。オートロックシステムでセキュリティもバッチリです。快適な独立洗面台つき。ウォークインクローゼットつき。