メインステージ神田須田町【満室】 *** | 1LDK | ***
本情報は過去に掲載された物件の参考情報です。 最新の物件情報など詳細につきましてはお気軽にお問合せください。
| 賃料 | *** | 管理費・共益費 | *** |
|---|---|---|---|
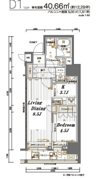
| 敷金/礼金 | *** / *** | 専有面積 | 40.66m² |
| 間取り | 1LDK | 階建 | ***/14階建 |
メインステージ神田須田町【満室】の詳細
| 賃料 | *** | 管理費・共益費 | *** |
|---|---|---|---|
| 敷金/保証金 | *** / *** | 礼金/償却・敷引 | *** / *** |
| 更新料 | *** | フリーレント | *** |
| その他費用 | *** | ||
| 所在地 | 東京都千代田区神田須田町1丁目 | ||
| 交通 |
東京地下鉄銀座線「神田(東京)」 徒歩5分 山手線「秋葉原」 徒歩9分 東京地下鉄丸ノ内線「淡路町」 徒歩5分 東京地下鉄丸ノ内線 淡路町 徒歩5分 |
||
| 間取り | 1LDK | 間取り内訳 |
K 3.7 畳 LD 8.5 畳 洋室 4.5 畳 |
| 専有面積 | 40.66m² | バルコニー面積 | |
| 築年月(築年数) | 2016年07月(築9年) | 方位 | 南東 |
| 建物構造 | RC(鉄筋コンクリート) | 所在階/階建 | ***/14階建 |
| 総戸数 | 50戸 | 駐車場 | 無 |
| 保険料 | *** | 契約期間 | *** |
| 引渡 | 即時 | ||
| 現況(予定年月) | 空室 | ||
| 管理 | |||
| 設備・条件 | BSアンテナ、CSアンテナ、光ファイバー、オートロック、TVドアホン、防犯カメラ、宅配ボックス、駐輪場、エレベータ、システムキッチン、バス・トイレ別、温水洗浄便座、浴室乾燥機、室内洗濯機置き場、フローリング、エアコン、バルコニー、分譲賃貸、礼金なし、敷金なし、ペット相談 | ||
| 備考 | 保証人代行:必須/管理会社指定:賃料+管理費の50%~ | ||
| 周辺施設 |
ローソン内神田三丁目店(距離:734m) まいばすけっと岩本町2丁目店(距離:695m) 業務スーパー神田店(距離:338m) 肉のハナマサ神田店(距離:716m) まいばすけっと岩本町3丁目店(距離:715m) サンクス神田多町店(距離:309m) |
||
| 物件番号 | 63095 | 取引態様 | 仲介 |
| 情報更新日 | *** | ||
| 次回更新予定日 | 情報更新日より15日以内 | ||














COMMENTS FROM STAFFメインステージ神田須田町【満室】の
担当者コメント
東京の1人暮らしはアセットナビへ!自社ブランドマンションをはじめ、賃貸物件を数多くご紹介可能です。こちらの物件は、分譲賃貸マンションで設備が充実しております。オートロックシステムでセキュリティもバッチリです。