メインステージ十条II【満室】 *** | 1K | ***
本情報は過去に掲載された物件の参考情報です。 最新の物件情報など詳細につきましてはお気軽にお問合せください。
| 賃料 | *** | 管理費・共益費 | *** |
|---|---|---|---|
| 敷金/礼金 | *** / *** | 専有面積 | 25.72m² |
| 間取り | 1K | 階建 | ***/14階建 |
メインステージ十条II【満室】の詳細
| 賃料 | *** | 管理費・共益費 | *** |
|---|---|---|---|
| 敷金/保証金 | *** / *** | 礼金/償却・敷引 | *** / *** |
| 更新料 | *** | フリーレント | *** |
| その他費用 | *** | ||
| 所在地 | 東京都北区中十条1丁目 | ||
| 交通 |
京浜東北・根岸線「東十条」 徒歩7分 埼京線「十条(東京)」 徒歩9分 東京地下鉄南北線「王子」 徒歩17分 |
||
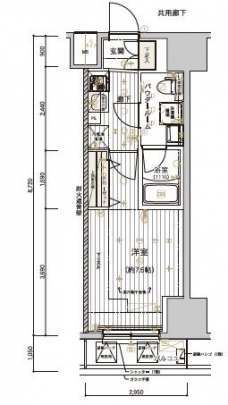
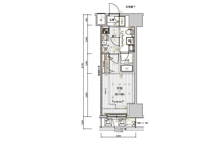
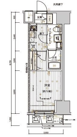
| 間取り | 1K | 間取り内訳 |
K 2 畳 洋室 7.6 畳 |
| 専有面積 | 25.72m² | バルコニー面積 | |
| 築年月(築年数) | 2020年11月(築5年) | 方位 | 南西 |
| 建物構造 | RC(鉄筋コンクリート) | 所在階/階建 | ***/14階建 |
| 総戸数 | 50戸 | 駐車場 | 無 |
| 保険料 | *** | 契約期間 | *** |
| 引渡 | 2023年01月 | ||
| 現況(予定年月) | 賃貸中 | ||
| 管理 | 管理人/巡回、 | ||
| 設備・条件 | BSアンテナ、CSアンテナ、CATV、光ファイバー、オートロック、TVドアホン、防犯カメラ、宅配ボックス、駐輪場、エレベータ、2階以上、システムキッチン、バス・トイレ別、温水洗浄便座、浴室乾燥機、室内洗濯機置き場、フローリング、24時間換気システム、エアコン、バルコニー、分譲賃貸 | ||
| 備考 | 保証人代行:必須/管理会社指定:賃料+管理費の50%~ | ||
| 周辺施設 |
まいばすけっと 王子本町2丁目店近隣(距離:353m) 雄飛堂薬局 在宅センター十条店近隣(距離:377m) ミニストップ 東十条店近隣(距離:567m) セブンイレブン 北区東十条駅前店近隣(距離:507m) セリア サミット王子桜田通り店近隣(距離:858m) |
||
| 物件番号 | 32081 | 取引態様 | 仲介 |
| 情報更新日 | *** | ||
| 次回更新予定日 | 情報更新日より15日以内 | ||




















COMMENTS FROM STAFFメインステージ十条II【満室】の
担当者コメント
東京の1人暮らしはアセットナビへ!自社ブランドマンションをはじめ、賃貸物件を数多くご紹介可能です。こちらの物件は、分譲賃貸マンションで設備が充実しております。オートロックシステムでセキュリティもバッチリです。