トーシンフェニックス五反田【満室】 *** | 1K | ***
本情報は過去に掲載された物件の参考情報です。 最新の物件情報など詳細につきましてはお気軽にお問合せください。
| 賃料 | *** | 管理費・共益費 | *** |
|---|---|---|---|
| 敷金/礼金 | *** / *** | 専有面積 | 22.55m² |
| 間取り | 1K | 階建 | ***/9階建(B3階) |
トーシンフェニックス五反田【満室】の詳細
| 賃料 | *** | 管理費・共益費 | *** |
|---|---|---|---|
| 敷金/保証金 | *** / *** | 礼金/償却・敷引 | *** / *** |
| 更新料 | *** | フリーレント | *** |
| その他費用 | *** | ||
| 所在地 | 東京都品川区西五反田2丁目 | ||
| 交通 |
山手線「五反田」 徒歩2分 東急池上線「大崎広小路」 徒歩9分 東急目黒線「不動前」 徒歩12分 |
||
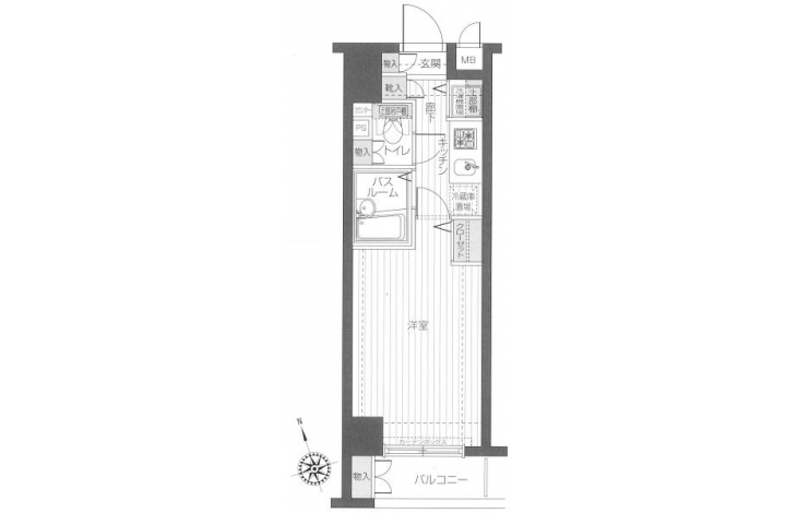
| 間取り | 1K | 間取り内訳 |
K 1.5 畳 洋室 6.7 畳 |
| 専有面積 | 22.55m² | バルコニー面積 | |
| 築年月(築年数) | 2005年05月(築20年) | 方位 | 南西 |
| 建物構造 | RC(鉄筋コンクリート) | 所在階/階建 | ***/9階建(B3階) |
| 総戸数 | 88戸 | 駐車場 | 無 |
| 保険料 | *** | 契約期間 | *** |
| 引渡 | 2024年08月 | ||
| 現況(予定年月) | 賃貸中 | ||
| 管理 | 管理人/日勤、 | ||
| 設備・条件 | BSアンテナ、CSアンテナ、CATV、オートロック、TVドアホン、防犯カメラ、宅配ボックス、バイク置き場、駐輪場、エレベータ、デザイナーズ、2階以上、システムキッチン、バス・トイレ別、浴室乾燥機、室内洗濯機置き場、フローリング、エアコン、バルコニー、分譲賃貸、ペット不可 | ||
| 備考 | 保証人代行:必須/総賃料の50% | ||
| 周辺施設 |
成城石井アトレヴィ五反田店(距離:309m) マルエツプチ五反田店(距離:697m) foodium東五反田(距離:860m) ファミリーマート東五反田五丁目店(距離:433m) ナチュラルローソン西五反田八丁目店(距離:582m) ローソンアートヴィレッジ大崎店(距離:916m) |
||
| 物件番号 | 51334 | 取引態様 | 仲介 |
| 情報更新日 | *** | ||
| 次回更新予定日 | 情報更新日より15日以内 | ||



















COMMENTS FROM STAFFトーシンフェニックス五反田【満室】の
担当者コメント
東京の1人暮らしはアセットナビへ!自社ブランドマンションをはじめ、賃貸物件を数多くご紹介可能です。こちらの物件は、分譲賃貸マンションで設備が充実しております。オートロックシステムでセキュリティもバッチリです。