トーシンフェニックス五反田【満室】 *** | 2K | ***
本情報は過去に掲載された物件の参考情報です。 最新の物件情報など詳細につきましてはお気軽にお問合せください。
| 賃料 | *** | 管理費・共益費 | *** |
|---|---|---|---|
| 敷金/礼金 | *** / *** | 専有面積 | 34.23m² |
| 間取り | 2K | 階建 | ***/9階建 |
トーシンフェニックス五反田【満室】の詳細
| 賃料 | *** | 管理費・共益費 | *** |
|---|---|---|---|
| 敷金/保証金 | *** / *** | 礼金/償却・敷引 | *** / *** |
| 更新料 | *** | フリーレント | *** |
| その他費用 | *** | ||
| 所在地 | 東京都品川区西五反田2丁目 | ||
| 交通 |
山手線「五反田」 徒歩2分 都営浅草線「五反田」 徒歩2分 東急池上線「五反田」 徒歩3分 |
||
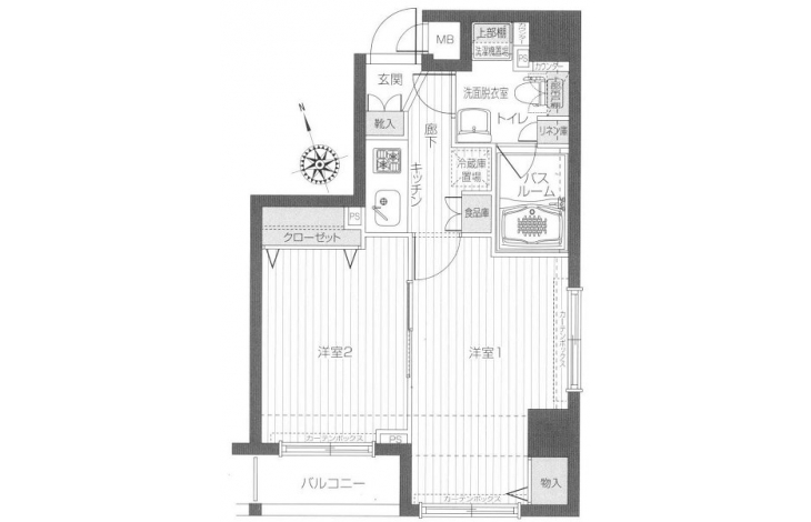
| 間取り | 2K | 間取り内訳 |
洋室 5.2 畳 5 階 洋室 7.3 畳 5 階 |
| 専有面積 | 34.23m² | バルコニー面積 | 2.40m² |
| 築年月(築年数) | 2005年05月(築20年) | 方位 | 南西 |
| 建物構造 | RC(鉄筋コンクリート) | 所在階/階建 | ***/9階建 |
| 総戸数 | 87戸 | 駐車場 | |
| 保険料 | *** | 契約期間 | *** |
| 引渡 | 相談 | ||
| 現況(予定年月) | 空室 | ||
| 管理 | 管理人/巡回、 | ||
| 設備・条件 | CATV、オートロック、TVドアホン、防犯カメラ、ダブルロックキー、宅配ボックス、バイク置き場、駐輪場、エレベータ、2階以上、角部屋、システムキッチン、バス・トイレ別、温水洗浄便座、浴室乾燥機、追い焚き、室内洗濯機置き場、フローリング、24時間換気システム、エアコン、バルコニー、分譲賃貸 | ||
| 備考 | 保証人代行:必須/トーシンライフ、オリコフォレントインシュア、全保連/保証料:初回=賃料等×50%、月額=賃料等×1% | ||
| 周辺施設 |
まいばすけっと 西五反田2丁目店(距離:113m) ファミリーマート 西五反田二丁目店(距離:168m) ナチュラルローソン 西五反田二丁目店(距離:136m) |
||
| 物件番号 | 47111 | 取引態様 | 仲介 |
| 情報更新日 | *** | ||
| 次回更新予定日 | 情報更新日より15日以内 | ||

















COMMENTS FROM STAFFトーシンフェニックス五反田【満室】の
担当者コメント
東京の1人暮らしはアセットナビへ!自社ブランドマンションをはじめ、賃貸物件を数多くご紹介可能です。こちらの物件は、分譲賃貸マンションで設備が充実しております。オートロックシステムでセキュリティもバッチリです。