メインステージ菊川【満室】 *** | 1LDK | ***
本情報は過去に掲載された物件の参考情報です。 最新の物件情報など詳細につきましてはお気軽にお問合せください。
| 賃料 | *** | 管理費・共益費 | *** |
|---|---|---|---|
| 敷金/礼金 | *** / *** | 専有面積 | 46.68m² |
| 間取り | 1LDK | 階建 | ***/7階建 |
メインステージ菊川【満室】の詳細
| 賃料 | *** | 管理費・共益費 | *** |
|---|---|---|---|
| 敷金/保証金 | *** / *** | 礼金/償却・敷引 | *** / *** |
| 更新料 | *** | フリーレント | *** |
| その他費用 | *** | ||
| 所在地 | 東京都墨田区立川4丁目 | ||
| 交通 |
都営新宿線「菊川(東京)」 徒歩6分 総武・中央緩行線「錦糸町」 徒歩11分 都営新宿線「住吉(東京)」 徒歩16分 東京地下鉄半蔵門線 住吉 徒歩15分 |
||
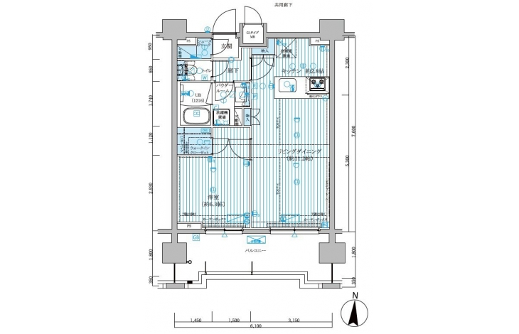
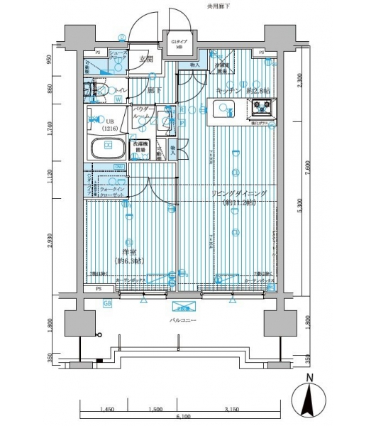
| 間取り | 1LDK | 間取り内訳 |
LDK 14 畳 洋室 6.3 畳 |
| 専有面積 | 46.68m² | バルコニー面積 | |
| 築年月(築年数) | 2014年08月(築11年) | 方位 | 南 |
| 建物構造 | RC(鉄筋コンクリート) | 所在階/階建 | ***/7階建 |
| 総戸数 | 駐車場 | 無 | |
| 保険料 | *** | 契約期間 | *** |
| 引渡 | 2022年03月 | ||
| 現況(予定年月) | 居住中 | ||
| 管理 | |||
| 設備・条件 | BSアンテナ、CSアンテナ、光ファイバー、オートロック、TVドアホン、防犯カメラ、ディンプルキー、宅配ボックス、駐輪場、エレベータ、デザイナーズ、閑静な住宅街、角部屋、システムキッチン、カウンターキッチン、バス・トイレ別、温水洗浄便座、浴室乾燥機、追い焚き、室内洗濯機置き場、フローリング、エアコン、ウォークインクローゼット、バルコニー、分譲賃貸、日当たり良好 | ||
| 備考 | 保証人代行:必須/賃料総額50%~ | ||
| 周辺施設 |
まいばすけっと錦糸町駅西店(距離:623m) ファミリーマート江東橋二丁目店(距離:552m) セブンイレブン 墨田緑3丁目店(距離:301m) くすりの福太郎 菊川店(距離:364m) 肉のハナマサ住吉店(距離:601m) |
||
| 物件番号 | 23191 | 取引態様 | 代理 |
| 情報更新日 | *** | ||
| 次回更新予定日 | 情報更新日より15日以内 | ||

















COMMENTS FROM STAFFメインステージ菊川【満室】の
担当者コメント
東京の1人暮らしはアセットナビへ!自社ブランドマンションをはじめ、賃貸物件を数多くご紹介可能です。こちらの物件は、分譲賃貸マンションで設備が充実しております。オートロックシステムでセキュリティもバッチリです。