スカイコート・ヴィーダ五反田ウエスト【満室】 *** | 1K | ***
本情報は過去に掲載された物件の参考情報です。 最新の物件情報など詳細につきましてはお気軽にお問合せください。
| 賃料 | *** | 管理費・共益費 | *** |
|---|---|---|---|
| 敷金/礼金 | *** / *** | 専有面積 | 21.93m² |
| 間取り | 1K | 階建 | ***/14階建 |
スカイコート・ヴィーダ五反田ウエスト【満室】の詳細
| 賃料 | *** | 管理費・共益費 | *** |
|---|---|---|---|
| 敷金/保証金 | *** / *** | 礼金/償却・敷引 | *** / *** |
| 更新料 | *** | フリーレント | *** |
| その他費用 | *** | ||
| 所在地 | 東京都品川区西五反田8丁目 | ||
| 交通 |
都営浅草線「戸越」 徒歩7分 東急池上線「大崎広小路」 徒歩7分 東急目黒線「不動前」 徒歩14分 |
||
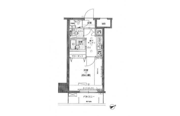
| 間取り | 1K | 間取り内訳 |
洋室 6.3 畳 6 階 |
| 専有面積 | 21.93m² | バルコニー面積 | |
| 築年月(築年数) | 2006年08月(築19年) | 方位 | 南東 |
| 建物構造 | RC(鉄筋コンクリート) | 所在階/階建 | ***/14階建 |
| 総戸数 | 218戸 | 駐車場 | |
| 保険料 | *** | 契約期間 | *** |
| 引渡 | 2023年05月 | ||
| 現況(予定年月) | 賃貸中 | ||
| 管理 | |||
| 設備・条件 | オートロック、宅配ボックス、駐輪場、エレベータ、2階以上、バス・トイレ別、室内洗濯機置き場、フローリング、エアコン | ||
| 備考 | 保証人代行:必須/トーシンライフサポート、オリコフォレントインシュア/保証料:初回=賃料等×50%、月額=賃料等×1% | ||
| 周辺施設 |
ライフ 大崎百反通店(距離:178m) ファミリーマート 品川平塚店(距離:201m) ローソンLTF 荏原一丁目店(距離:337m) ミユキ薬局(距離:353m) まいばすけっと 西五反田6丁目店(距離:448m) セブンイレブン 西五反田6丁目店(距離:408m) |
||
| 物件番号 | 35026 | 取引態様 | 仲介 |
| 情報更新日 | *** | ||
| 次回更新予定日 | 情報更新日より15日以内 | ||

















COMMENTS FROM STAFFスカイコート・ヴィーダ五反田ウエスト【満室】の
担当者コメント
東京の1人暮らしはアセットナビへ!自社ブランドマンションをはじめ、賃貸物件を数多くご紹介可能です。こちらの物件は、分譲賃貸マンションで設備が充実しております。オートロックシステムでセキュリティもバッチリです。