イアース練馬【満室】 *** | 1K | ***
本情報は過去に掲載された物件の参考情報です。 最新の物件情報など詳細につきましてはお気軽にお問合せください。
| 賃料 | *** | 管理費・共益費 | *** |
|---|---|---|---|
| 敷金/礼金 | *** / *** | 専有面積 | 25.91m² |
| 間取り | 1K | 階建 | ***/12階建 |
イアース練馬【満室】の詳細
| 賃料 | *** | 管理費・共益費 | *** |
|---|---|---|---|
| 敷金/保証金 | *** / *** | 礼金/償却・敷引 | *** / *** |
| 更新料 | *** | フリーレント | *** |
| その他費用 | *** | ||
| 所在地 | 東京都練馬区桜台4丁目 | ||
| 交通 |
都営大江戸線「練馬」 徒歩6分 西武池袋・豊島線「桜台(東京)」 徒歩4分 西武有楽町線「新桜台」 徒歩13分 |
||
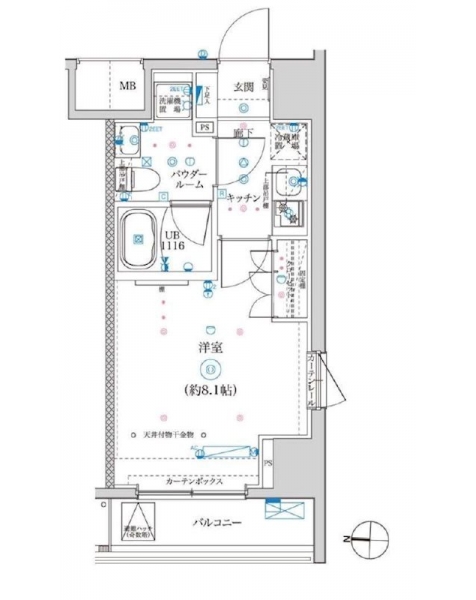
| 間取り | 1K | 間取り内訳 |
洋室 8.1 畳 K 2 畳 |
| 専有面積 | 25.91m² | バルコニー面積 | |
| 築年月(築年数) | 2019年03月(築6年) | 方位 | 西 |
| 建物構造 | RC(鉄筋コンクリート) | 所在階/階建 | ***/12階建 |
| 総戸数 | 駐車場 | 無 | |
| 保険料 | *** | 契約期間 | *** |
| 引渡 | 相談 | ||
| 現況(予定年月) | 居住中 | ||
| 管理 | |||
| 設備・条件 | BSアンテナ、CSアンテナ、オートロック、TVドアホン、防犯カメラ、ディンプルキー、ダブルロックキー、宅配ボックス、バイク置き場、駐輪場、エレベータ、2階以上、角部屋、システムキッチン、バス・トイレ別、温水洗浄便座、浴室乾燥機、室内洗濯機置き場、フローリング、24時間換気システム、エアコン、バルコニー、分譲賃貸、ペット相談 | ||
| 備考 | 保証人代行:必須/初回保証料:毎月支払い合計額30%~ 1年毎更新料10,000円 | ||
| 周辺施設 |
セブンイレブン 練馬桜台4丁目店(距離:315m) まいばすけっと 練馬駅北口店(距離:292m) まいばすけっと 桜台駅北店(距離:356m) ファミリーマート 桜台駅前店(距離:256m) トモズ Emio桜台店(距離:276m) ミネドラッグ 桜台駅前店(距離:253m) |
||
| 物件番号 | 59141 | 取引態様 | 仲介 |
| 情報更新日 | *** | ||
| 次回更新予定日 | 情報更新日より15日以内 | ||

















COMMENTS FROM STAFFイアース練馬【満室】の
担当者コメント
東京の1人暮らしはアセットナビへ!自社ブランドマンションをはじめ、賃貸物件を数多くご紹介可能です。こちらの物件は、分譲賃貸マンションで設備が充実しております。オートロックシステムでセキュリティもバッチリです。