メインステージ武蔵関駅前II【満室】 *** | 1K | ***
本情報は過去に掲載された物件の参考情報です。 最新の物件情報など詳細につきましてはお気軽にお問合せください。
| 賃料 | *** | 管理費・共益費 | *** |
|---|---|---|---|
| 敷金/礼金 | *** / *** | 専有面積 | 25.51m² |
| 間取り | 1K | 階建 | ***/10階建 |
メインステージ武蔵関駅前II【満室】の詳細
| 賃料 | *** | 管理費・共益費 | *** |
|---|---|---|---|
| 敷金/保証金 | *** / *** | 礼金/償却・敷引 | *** / *** |
| 更新料 | *** | フリーレント | *** |
| その他費用 | *** | ||
| 所在地 | 東京都練馬区関町北2丁目 | ||
| 交通 |
西武鉄道新宿線「武蔵関」 徒歩2分 西武鉄道新宿線「上石神井」 徒歩21分 京王電鉄井の頭線「吉祥寺」 徒歩36分 |
||
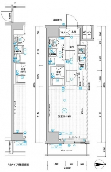
| 間取り | 1K | 間取り内訳 |
K 2 畳 洋室 8.2 畳 |
| 専有面積 | 25.51m² | バルコニー面積 | |
| 築年月(築年数) | 2016年03月(築9年) | 方位 | 東 |
| 建物構造 | RC(鉄筋コンクリート) | 所在階/階建 | ***/10階建 |
| 総戸数 | 64戸 | 駐車場 | 無 |
| 保険料 | *** | 契約期間 | *** |
| 引渡 | 2022年10月 | ||
| 現況(予定年月) | 居住中 | ||
| 管理 | 管理人/巡回、 | ||
| 設備・条件 | BSアンテナ、CSアンテナ、オートロック、TVドアホン、防犯カメラ、ディンプルキー、ダブルロックキー、宅配ボックス、駐輪場、エレベータ、デザイナーズ、2階以上、システムキッチン、バス・トイレ別、温水洗浄便座、浴室乾燥機、室内洗濯機置き場、洗濯機置き場有、フローリング、24時間換気システム、エアコン、バルコニー、分譲賃貸、ルームシェア相談 | ||
| 備考 | 保証人代行:必須/総家賃の50%~ | ||
| 周辺施設 |
まいばすけっと 武蔵関駅南口店(距離:79m) Santoku(サントク) 関町店(距離:275m) セブンイレブン 練馬関町北2丁目店(距離:12m) ローソン 練馬関町北二丁目店(距離:244m) ココカラファイン 関町店(距離:28m) |
||
| 物件番号 | 29151 | 取引態様 | 仲介 |
| 情報更新日 | *** | ||
| 次回更新予定日 | 情報更新日より15日以内 | ||





















COMMENTS FROM STAFFメインステージ武蔵関駅前II【満室】の
担当者コメント
東京の1人暮らしはアセットナビへ!自社ブランドマンションをはじめ、賃貸物件を数多くご紹介可能です。こちらの物件は、分譲賃貸マンションで設備が充実しております。オートロックシステムでセキュリティもバッチリです。