本情報は過去に掲載された物件の参考情報です。 最新の物件情報など詳細につきましてはお気軽にお問合せください。
| 賃料 | *** | 管理費・共益費 | *** |
|---|---|---|---|
| 敷金/礼金 | *** / *** | 専有面積 | 25.81m² |
| 間取り | 2K | 階建 | ***/4階建 |
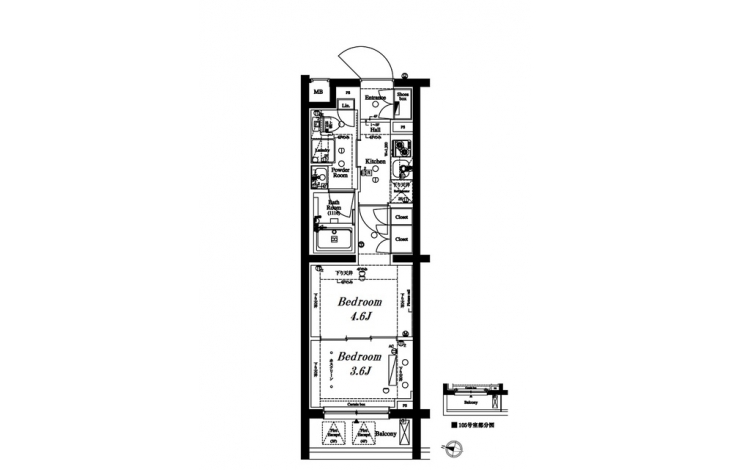
【間取り】間取図
【キッチン】キッチン
【リビング】居室
【風呂】バス
【ベッドルーム】寝室
【玄関】玄関
【バルコニー・ベランダ】バルコニー
【トイレ】トイレ
【洗面所】洗面所
【その他設備】設備
【収納】収納
【その他設備】セキュリティ
【リビング】居室
【キッチン】キッチン
【風呂】バス
【外観】街並みに調和するシックな色調でありながら新鮮で都会的な印象を与える洗練されたデザイン性がステイタスのあるライフステージを創出します。
【外観】モダンでスタイリッシュ、そして知的なファサード。
【外観】閑静な住宅街
【エントランス】建物の個性やクオリティー、さらにはブランド力のあるエリアのステイタスにふさわしいデザイン性をも象徴するのがエントランス。
【TVモニター付オートロックシステム】共用部リーダに非接触キーをかざすことで認証作業を行いますので、ストレス無くエントランスから共用部を通過できます。
【宅配ボックス】居住者は操作も簡単で24時間いつでも好きな時に、宅配業者を待つことなく、忙しいときやお出かけするときに宅配物を受け取ることが出来ます。
【駐輪場】27台分の自転車置き場を設けました。ショッピングや近隣へのお出かけなどに便利です。 ※一部高さ制限があり。
【エントランス】内外部の壁面には色合いや質感に優れた高級感あふれる面材をふんだんに使用、プライベートエリアへのプロローグを上品に、そしてドラマティックに演出します。
【内廊下】外部から部屋を特定される心配はございませんので、女性でも安心して帰宅することができます。
GoogleMapを読み込んでいます。
35.699582 139.672226
アークマーク新中野【満室】の詳細
| 賃料 | *** | 管理費・共益費 | *** |
|---|---|---|---|
| 敷金/保証金 | *** / *** | 礼金/償却・敷引 | *** / *** |
| 更新料 | *** | フリーレント | *** |
| その他費用 | *** | ||
| 所在地 | 東京都中野区中央3丁目 | ||
| 交通 |
東京地下鉄丸ノ内線「新中野」 徒歩6分 中央本線「中野(東京)」 徒歩15分 都営大江戸線「中野坂上」 徒歩13分 |
||
| 間取り | 2K | 間取り内訳 |
洋室 4.6 畳 洋室 3.6 畳 洋室 3.6 畳 |
| 専有面積 | 25.81m² | バルコニー面積 | |
| 築年月(築年数) | 2020年07月(築5年) | 方位 | 西 |
| 建物構造 | RC(鉄筋コンクリート) | 所在階/階建 | ***/4階建 |
| 総戸数 | 28戸 | 駐車場 | 無 |
| 保険料 | *** | 契約期間 | *** |
| 引渡 | 2026年01月 | ||
| 現況(予定年月) | 賃貸中 | ||
| 管理 | 管理人/巡回、 | ||
| 設備・条件 | BSアンテナ、CSアンテナ、光ファイバー、オートロック、TVドアホン、防犯カメラ、ディンプルキー、ダブルロックキー、宅配ボックス、駐輪場、エレベータ、デザイナーズ、ARKMARK(アークマーク)シリーズ、2階以上、システムキッチン、バス・トイレ別、温水洗浄便座、浴室乾燥機、室内洗濯機置き場、フローリング、24時間換気システム、エアコン、バルコニー、分譲賃貸、礼金なし、敷金なし、ペット相談 | ||
| 備考 | 保証人代行:必須/エポス、クレディセゾン、新日本信用保証、ルームバンクインシュア、ジェイリース、家賃総額の30%~ | ||
| 周辺施設 |
中野区立谷戸小学校750m、宝仙学園中学校700m、コンビニ距離270m、スーパー距離340m、病院距離800m 肉のハナマサ中野店(距離:402m) まいばすけっと中野2丁目店(距離:470m) マルマンストア中野店(距離:880m) コープ中野中央店(距離:937m) セブンイレブン中野中央店(距離:258m) ファミリーマート新中野店(距離:467m) |
||
| 物件番号 | 15468 | 取引態様 | 仲介 |
| 情報更新日 | *** | ||
| 次回更新予定日 | 情報更新日より15日以内 | ||

















COMMENTS FROM STAFFアークマーク新中野【満室】の
担当者コメント
東京の1人暮らしはアセットナビへ!自社ブランドマンションをはじめ、賃貸物件を数多くご紹介可能です。こちらの物件は、当社グループ会社管理物件につき仲介手数料半額でご紹介中です。敷金礼金ゼロで初期費用が抑えられます。