本情報は過去に掲載された物件の参考情報です。 最新の物件情報など詳細につきましてはお気軽にお問合せください。
| 賃料 | *** | 管理費・共益費 | *** |
|---|---|---|---|
| 敷金/礼金 | *** / *** | 専有面積 | 25.81m² |
| 間取り | 2K | 階建 | ***/3階建 |
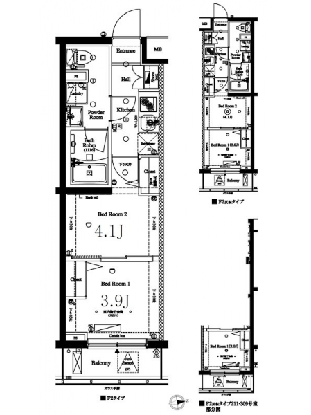
【間取り】間取図
【キッチン】キッチン
【リビング】リビング
【風呂】バス
【ベッドルーム】寝室
【玄関】玄関
【バルコニー・ベランダ】バルコニー
【洗面所】洗面所
【トイレ】トイレ
【その他設備】設備
【収納】収納
【その他】内装
【ベッドルーム】寝室
【リビング】居室
【キッチン】キッチン
【外観】都会的な白と黒のツートンが映える低層レジデンス
【外観】高級感漂うシックで洗練されたデザイン
【エントランス】洗練された外観デザインを象徴する品格あるエントランス
【エントランス】緑が映える清潔感のあるエントランス
【ロビー】エレガントな雰囲気に包まれたエントランスホール
【エントランスホール】壁面には大理石柄を使用し、男女問わず好まれるデザイン
【エントランスホール】都心の雰囲気とは無緑の静寂の世界観を演出
【エントランスホール】白と黒を基調とした魅力的なデザイン
【オートロック】訪問者を確認後に施錠できるため、安心な生活を送ることができます
【集合ポスト】シンプルなダイヤル式の郵便ポスト
【宅配ボックス】24時間いつでも好きな時に、宅配物を受け取ることができます
【駐輪場】建物内に34台分の駐輪場を設けました。
GoogleMapを読み込んでいます。
35.724191 139.648876
アークマーク中野鷺宮【満室】の物件動画
アークマーク中野鷺宮【満室】の詳細
| 賃料 | *** | 管理費・共益費 | *** |
|---|---|---|---|
| 敷金/保証金 | *** / *** | 礼金/償却・敷引 | *** / *** |
| 更新料 | *** | フリーレント | *** |
| その他費用 | *** | ||
| 所在地 | 東京都中野区鷺宮2丁目 | ||
| 交通 |
西武鉄道新宿線「都立家政」 徒歩7分 西武鉄道新宿線「野方」 徒歩9分 西武鉄道新宿線「鷺ノ宮」 徒歩14分 |
||
| 間取り | 2K | 間取り内訳 |
洋室 4.1 畳 洋室 3.9 畳 洋室 3.9 畳 |
| 専有面積 | 25.81m² | バルコニー面積 | |
| 築年月(築年数) | 2020年05月(築5年) | 方位 | 東 |
| 建物構造 | RC(鉄筋コンクリート) | 所在階/階建 | ***/3階建 |
| 総戸数 | 35戸 | 駐車場 | 無 |
| 保険料 | *** | 契約期間 | *** |
| 引渡 | 2024年01月 | ||
| 現況(予定年月) | 居住中 | ||
| 管理 | 管理人/巡回、管理会社/株式会社アセットコミュニティ | ||
| 設備・条件 | BSアンテナ、CSアンテナ、光ファイバー、オートロック、TVドアホン、防犯カメラ、宅配ボックス、駐輪場、エレベータ、ARKMARK(アークマーク)シリーズ、2階以上、システムキッチン、バス・トイレ別、温水洗浄便座、浴室乾燥機、室内洗濯機置き場、フローリング、24時間換気システム、エアコン、バルコニー、分譲賃貸、礼金なし、敷金なし、ペット相談 | ||
| 備考 | 保証人代行:必須/エポス、クレディセゾン、新日本信用保証、ルームバンクインシュア 家賃総額の30%~ | ||
| 周辺施設 |
サミットストア鷺宮店(距離:251m) コープ中野鷺宮店(距離:365m) まいばすけっと野方駅北口店(距離:498m) 西友豊玉南店(距離:871m) ファミリーマート 中野鷺宮一丁目店(距離:275m) マツモトキヨシ 都立家政店(距離:612m) |
||
| 物件番号 | 23360 | 取引態様 | 仲介 |
| 情報更新日 | *** | ||
| 次回更新予定日 | 情報更新日より15日以内 | ||


















COMMENTS FROM STAFFアークマーク中野鷺宮【満室】の
担当者コメント
東京の1人暮らしはアセットナビへ!自社ブランドマンションをはじめ、賃貸物件を数多くご紹介可能です。来店キャンペーン実施中!ご来店のお客様・先着30名にハーゲンダッツギフト券をプレゼント。詳しくはスタッフまでお問い合わせください。